基坑支护新技术在敏感环境深大地下工程中的应用

2015-08-14 275 0
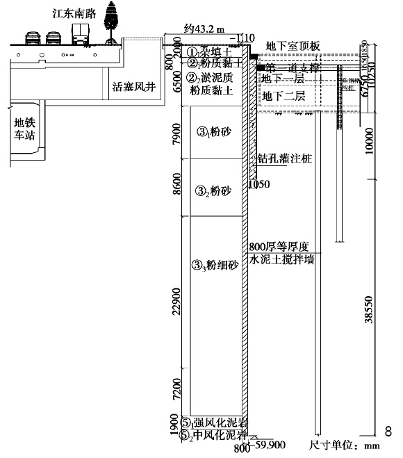
核心提示:  一、工程简介  基坑概况  全埋式地下车库、地下二层  基坑面积:28300m2  开挖深度:10.25m  环境概况  地铁12号

   一、工程简介

 
  基坑概况
 
  •全埋式地下车库、地下二层
 
  •基坑面积:28300m2
 
  •开挖深度:10.25m
 
基坑支护新技术在敏感环境深大地下工程中的应用
 
  环境概况
 
  •地铁12号线黄河路站及隧道
 
  •城市快速轨道
 
  •市政管线
 
  地质条件
 



 
 
  二、基坑支护设计方案
 
  基坑特点
 
  •青奥会配套项目,工期极其紧张
 
  •水文地质条件复杂,面临严峻的承压水问题
 
  •北侧和东侧环境较为复杂
 
  总体设计方案
 
  •“桩墙合一”钻孔灌注桩围护墙结合外侧隔水帷幕
 
  •北半部分:落底式TRD工法等厚度水泥土搅拌墙隔水帷幕
 
  •南半部分:悬挂三轴水泥土搅拌桩隔水帷幕
 
  •一道临时混凝土支撑
 
  剖面图
 




 
  支撑平面图
 

 
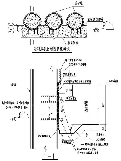
  三、“桩墙合一”设计
 
  优点
 
  •将常规废弃的临时围护桩作为永久地下室侧壁的一部分,减少地下室外墙的厚度(可以从700~800mm减薄为350mm),节约工程造价,减少钢筋混凝土材料浪费
 
  •本工程为全埋式地下结构,地下室抗浮要求较高,钻孔灌注桩承受地下室边跨的水浮力
 
  设计原则
 
  •钻孔灌注桩配筋及插入深度满足基坑开挖和正常使用两阶段的要求
 



 
  •外墙承受永久使用阶段的水压力以及按刚度分配的部分土压力
 
  
  连接构造
 
  •压顶圈梁内预留插筋与结构顶板有效连接
 
  •底板范围内的预留插筋与基础底板连接
 



 
  防水做法
 

 
  四、TRD等厚度水泥土搅拌墙
 
  TRD设计
 
  •为减小基坑降水对地铁车站及隧道等敏感环境的影响,采用TRD隔断坑内外的承压水
 
  •TRD水泥土搅拌墙厚800mm,深度58.8m,进入中风化泥岩层不少于500mm
 
  取芯芯样
 

 
  •芯样自上而下均较为完整,连续性好,破碎较小
 
  •芯样呈水泥土颜色,并且自上而下颜色较为均匀
 
  芯样强度
 

 
  •芯样强度平均值为3.14~3.41MPa
 
  •强度较为均匀且基本大于3.0MPa
 
  隔水效果

 

 
  •北侧坑外承压水的水位不随坑内水位发生变化
 
  •南侧坑内外水位变化幅度最大达到3∶1
(来源:华东建筑设计研究总院上海基坑工程环境影响控制工程技术研究中心)
作者:陈永才

  • 点赞(0
  • 反对(0
  • 举报(0
  • 收藏(0
  • 分享(7
评论(0)

登录后发表评论~