土钉墙变形及土钉内力特征研究

2015-08-17 429 0
核心提示:  一、前言  1、课题研究的背景  2、课题研究的必要性  3、主要研究内容  足尺实验  在现场对土钉墙进行模拟实际施工

王曙光,滕延京,段启伟, 李钦锐,张雪婵
(中国建筑科学研究院地基基础研究所 建研地基基础工程有限责任公司) 
  一、前言
  1、课题研究的背景

 
  2、课题研究的必要性

  3、主要研究内容
  
足尺实验
  在现场对土钉墙进行模拟实际施工过程的足尺实验,测试不同形式土钉墙的土钉轴力及位移,并进行堆载。通过现场实测,对土钉内力及土钉墙后土体变形随基坑开挖的变化规律进行研究。
  数值分析
  通过数值分析对足尺试验进行验证,并对土钉墙的破坏形态和破坏机理进行研究。
  二、足尺实验
  1、试验场地工程地质条件

试验场地的位置

勘察平面布置图

土层剖面图
表2-1 土的主要物理力学性质统计表

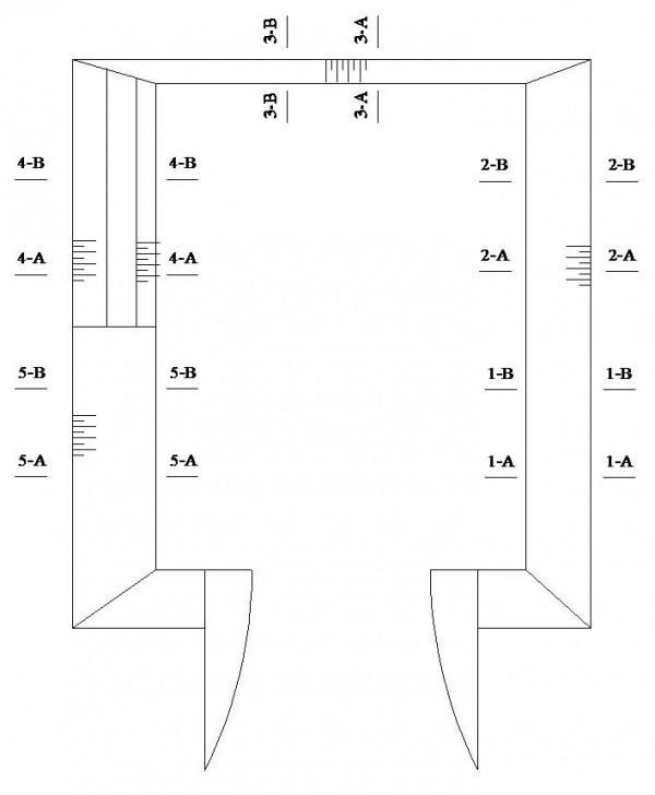
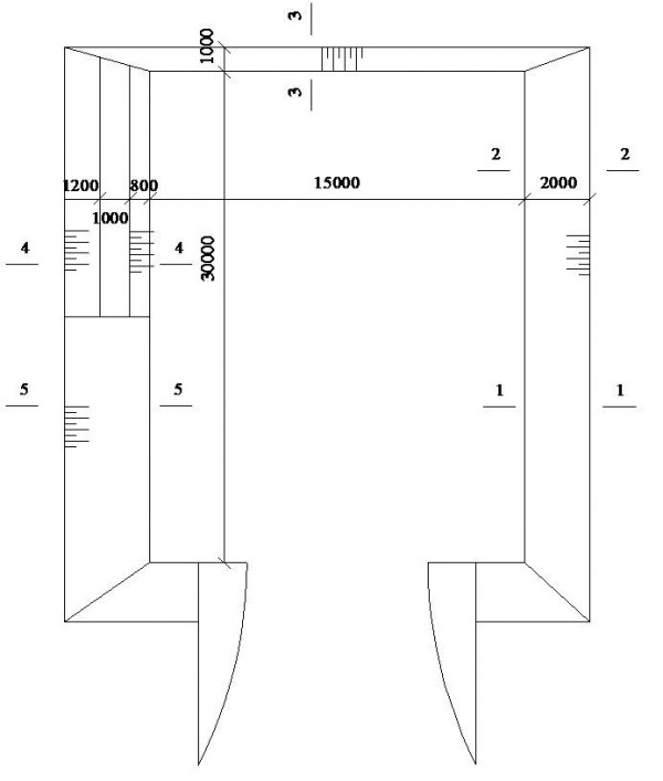
  2、试验的平面布置及剖面
 
试验平面布置图


1-1、2-2、(3-3)、[5-5]土钉剖面图

4-4土钉剖面图
  3、试验的测试

 
位移观测点平面布置图



土钉轴力测试平面图

1-1、2-2、(3-3)、[5-5]钢筋计布置图

4-4剖面钢筋计布置图



  4、试验的实施



 





  三、变形分析
  1、基坑坡顶水平位移

1:0.2土钉墙坑顶水平位移

1:0.1土钉墙坑顶水平位移

阶式土钉墙坑顶水平位移

1:0.3土钉墙坑顶水平位移

基坑开挖到底时土钉墙顶部的水平位移
  2、数值计算的位移云图(1:0.2土钉墙为例)




  3、土钉水平位移(1:0.2土钉墙为例)

第一排土钉开挖、加载过程中的土钉水平位移分布图

第三排土钉开挖、加载过程中的土钉水平位移分布图


第五排土钉开挖、加载过程中的土钉水平位移分布图

第六排土钉开挖、加载过程中的土钉水平位移分布图
  4、土钉与土体相对水平位移(1:0.2土钉墙为例)

第一排土钉开挖、加载过程中的土钉与土体相对水平位移分布图
 
第三排土钉开挖、加载过程中的土钉与土体相对水平位移分布图
 
第五排土钉开挖、加载过程中的土钉与土体相对水平位移分布图
 
第六排土钉开挖、加载过程中的土钉与土体相对水平位移分布图
 
土钉末端与土体的最大相对位移随加载过程的变化曲线

  四、土钉内力分析
  1、实测土钉轴力(1:0.2土钉墙为例)

第一排土钉开挖、加载过程中的土钉轴力分布图

第三排土钉开挖、加载过程中的土钉轴力分布图


第五排土钉开挖、加载过程中的土钉轴力分布图
 
第六排土钉开挖、加载过程中的土钉轴力分布图
  2、反算土钉摩阻力(1:0.2土钉墙为例)

第一排土钉开挖、加载过程中的土钉摩阻力分布图

第三排土钉开挖、加载过程中的土钉摩阻力分布图

第五排土钉开挖、加载过程中的土钉摩阻力分布图

第六排土钉开挖、加载过程中的土钉摩阻力分布图
  3、不同剖面的土钉轴力

1:0.2、1:0.1土钉墙开挖到底时土钉的最大轴力

阶式、1:0.3土钉墙开挖到底时土钉的最大轴力
  4、数值计算的土钉轴力(1:0.2土钉墙为例)

第一排土钉开挖、加载过程中的土钉轴力分布图
 
第三排土钉开挖、加载过程中的土钉轴力分布图

 第五排土钉开挖、加载过程中的土钉轴力分布图

 第六排土钉开挖、加载过程中的土钉轴力分布图

 
  5、数值计算的土钉摩阻力(1:0.2土钉墙为例)

第一排土钉开挖、加载过程中的土钉摩阻力分布图

第三排土钉开挖、加载过程中的土钉摩阻力分布图

第五排土钉开挖、加载过程中的土钉摩阻力分布图

第六排土钉开挖、加载过程中的土钉摩阻力分布图
  6、数值计算的土钉最大轴力

一~四号模型开挖到底时数值计算的土钉最大轴力
  五、结论
  1、随着基坑的开挖,基坑顶部水平位移及基坑后部土体的水平位移逐步增大。基坑开挖过程中水平位移最大点位于基坑面层的顶部,土钉墙坡体的水平位移近似为绕坡底向基坑方向的转动;在基坑加载的过程中,基坑最大水平位移点沿着坡面向下转移。
  2、随着土方的开挖,基坑上部的几排土钉最大轴力作用点迅速向土钉中部某一位置转移,土钉轴力沿土钉长度呈现中间大、两端小的形态。基坑下部的土钉,其轴力分布形态为土钉头部大、向尾部逐渐递减。
  3、在基坑开挖过程中,土钉与土体之间发生相对位移,从而产生摩阻力,土钉最大轴力作用点两侧土钉的摩阻力方向相反。主动区摩阻力近似呈抛物线分布,被动区前段摩阻力呈线性增长,土钉末端摩阻力最大且增长较快,随着荷载的施加逐步增大,被动区中后部摩阻力呈近似直线分布。

  • 点赞(0
  • 反对(0
  • 举报(0
  • 收藏(0
  • 分享(11
评论(0)

登录后发表评论~