浅谈高层建筑基坑支护处理技术

2015-07-20 292 0
核心提示:本文总结了某高层建筑基坑支护处理方案的确定过程,充分地阐述了现场情况调查的重要性,以及非常规的基坑支护处理理念,为复杂地质条件下基坑处理尝试了新的思路。

   一、引言

 
  目前深度3m以上的深基坑支护的新技术比较多,有土钉墙、悬臂桩、地下连续墙、内支撑等,但是基坑发生坍塌、边坡失稳等现象还是比较多,特别是一些经专家严格论证的基坑支护方案也发生坍塌事故。本工程在充分地调查基坑内土质以及基坑外建筑物的结构、土质和地下情况的基础上,并查阅了大量的相关工程经验,汲取水利行业中“疏堵结合”的治理理念,采取了放坡、卸荷以及支护相结合的技术,在保证基坑稳定和临近建筑物安全的前提下,不但降低了基坑坍塌的风险,节约了开支,也为地下室施工赢得了宝贵的时间。
 
  二、工程概况
 
  鸳江一都工程位于两江交汇山嘴处,红线面积5200平方米,地下一层,地上30层,总建筑面积约43000平方米,其中地下室面积约4400平方米。本工程地下室板底标高为-4.8m,土面自然标高-1.000~-1.400m;基础为静压φ500高强PHC管桩,约430根,桩深约30m。
 
  由于我公司进入该工程施工时,该工程土方工程已经由建设单位开挖完成,建设单位没有进行基坑支护设计,局部基坑面采用悬臂槽钢进行支护,基坑边坡出现变形比较大,开裂严重。为了确保基坑边坡以及临近建筑物、构筑物的安全,必须首先对基坑边坡采取措施,才能进入下一步施工。
 
  三、基坑特点与方案分析
 
  1、基坑概况。
 
  本工程东西宽约90m,南北宽约63m,红线内场地总面积5200㎡,地下室面积4400㎡,基坑开挖面积约4800㎡,红线内场地基本全部开挖完。施工场地原自然地面标高为-1.000~1.400m,地下室板底标高为-4.800m土方开挖深度约4m。
 
  2、周围环境概况。
 
  场地北面原有建筑离基坑距离约9m(离临时围墙6m),西面建筑物离基坑距离约5~7m,南面和东面紧靠鸳江路人行道,距离约道路约6m。据调查,基坑西面文化馆职工住9层宅楼为人工挖孔桩,基础埋深达20m,其生活污水排水沟暗埋从基坑场地内通过,水量很大;基坑外地下有旧的砖基础,砖基础下有1m后以上砂垫层。基坑外的南面有电力、电信、给排水等市政管线;临近基坑红线有旧的砖基础,砖基础下为约1.5m后的砂垫层。基坑东面为素填土,人行道下没有重要管线。
 
  梧州市每年5月进入汛期,雨水多,气温高。本工程地下室施工3~5月,地下室施工末期进入汛期。
 
  3、地质概况。
 
  根据地质勘察报告和现场勘查,自上而下场地岩土层为:
 
  杂填土,为15年以上人工填土,埋深1.5~6.2m,平均厚度3.54m;
 
  素填土,为15年以上人工填土,埋深0.5~6.2m,平均厚度2.5m
 
  淤泥质粘土,埋深3.5~7.0m,平均厚度1.82m……
 
  地下室基坑开挖主要在杂填土和素填土层。
 
  本工程稳定水位埋深3~4.9m,地下水位变幅受季节变化大,冬季枯水期,为在5~7m之间。实际基坑土方开挖时,地下水主要低于基坑土面约0.5~1m,但水量不大,采用水泵抽水降水即可。基坑土面以上四周生活排水已经通过水泥管组织排往市政排水管网,没有水从土壁渗入基坑。
 
  四、基坑西面原来按照相关资料和部门的要求采用悬臂型钢,无法承受基坑外杂填土的压力,其变形越来越大。
 
  在仔细阅读地质勘查报告并在充分了解、分析基坑周围环境状况的基础上,我们得出如下结论:
 
  ⑴、本工程不宜采用土钉墙等结构形式;
 
  ⑵、关于地质报告中要求采用悬臂桩的建议,一是本工程基坑没有工作面采用灌注桩;二是如果采用单排砼或型钢悬臂桩,由于地下室基坑以下及基坑外有2~3m厚的淤泥或松土层,很容易将悬臂桩挤压变形从而会带动基坑外建筑物下土体的移动,风险很大;三是由于基坑已经开挖,基坑土质比较差,不具备采用大型设备打型钢的条件。
 
  ⑶、本工程工期紧,按水利局的要求,必须在5月份在汛期到来前完成地下室结构施工,如果采用灌注桩等支护形式,光基坑处理就要2个月,时间不允许。
 
  ⑷、本工程的基坑边坡与建筑物的距离满足分级放坡要求,基坑变形对周围建筑物的结构安全不存在影响,而且地下室施工时间短,约2个月左右。
 
  五、基坑边坡支护方案
 
  根据基坑现场环境的调查、分析结果,在既确保安全,又要满足进度要求、经济可靠的情况下,我们参考了大量的相关的技术资料,综合采用了放坡、悬臂型钢、砂袋微型桩和卸荷等基坑支护方案。
 
  1、放坡。
 
  根据地址勘察报告提供的数据和现场勘查,靠近鸳江路的基坑东面为素填土,已有15年以上,土质基本固化,土质比较密实。而且东面靠近鸳江路,没有建筑物,基坑的变形对道路造成的影响很小,为此采用放坡方式。
 
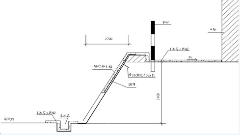
  基坑实际深度约3.8m,放坡2.3m,坡面用50厚的钢网细石混凝土进行保护,坡顶用100mm厚的混凝土硬化。
 
  
 
 
  2、砂袋+松型桩。
 
  基坑南边靠近鸳江桥和道路,基坑紧靠人行道,人行道下面有约2m的砂垫层,而且沿基坑旁有一旧砖基础和圈梁,采用砂袋+松型桩支护方案。
 
  
 
  
 
  3、卸荷+型钢。
 
  基坑西面靠近文化馆职工楼,距离约7米。根据甲方提供的历史资料,基坑外有两道旧砖基础,砖基础下有50cm砂垫层,砖基础上面是1~3m的杂填松土。采用分级卸荷+槽钢支护的方案。
 
  
 
  4、松木桩+钢管土钉。
 
  基坑北面离建筑物9m,基坑土质分两层,上面是约1.5~2m的杂填土层,下面是已经基本固化的素填土层。基坑高度约4.2m,采用卸荷+松木桩+钢管土钉的支护方案。
 
  六、结论语
 
  本工程基坑处理的方案是在充分的基坑土质、环境调查的基础上,经周密的论证,汲取水利行业“疏导结合”的治理理念,采用以卸荷为主导的非常规基坑支护处理方案,整个基坑处理的工期仅为15天,处理费用不到18万元,安全地度过了南方2至5月的雨季季节,不但确保了该工程在汛期到来之前完成地下室施工赢得了时间,而且与采用采取土钉墙或悬臂桩等支护形式相比,本方案的费用仅为常规方案的20%,取得了很好的经济效益。经4个月施工期间的观察,该方案比较成功。
 
  附件1
 
  放坡计算:根据地质报告,基坑侧壁为杂填土,已有15年以上,已经基本固化,其参数如下:γ=19.5,φ=12°,C=10KN/m
 
  当坡角θ=60°时,土坡保持稳定的允许高度:
 
  2×10×sin60cos12
 
  H==5.2m
 
  19.5×sin2(60-12/2)
 
  本工程实际深度约4m,满足要求。
 
  当土坡放坡角度为60°时,其放坡宽度为2m即可满足要求,本工程实际取2.3m。
 
  
 
  
 
  附件2:钢管土钉计算
 
  (1)每根木桩采用2根6m长的φ48×3的钢管,打入5.5m,每排间距1m,打入角θ=15°。根据《建筑桩基技术规范》JGJ94-2008以及地址勘察资料,表5.4.6-2素填土抗拔系数为0.5,摩擦力特征值为15KPa。
 
  钢管抗拔力T=3.14×0.048(5.5×0.5×15)=6.2KN/M
 
  取安全系数K=1.5,钢管抗拔力T=4KN/M,与实际经验符合。
 
  则2根5.5m钢管抗拔力T=2×5.5×4=44KN
 
  (2)钢管所承受的土压力,按底部最大情况进行简化计算,不考虑木桩的支护能力:cos15=0.969,H=2.5m,γ=19.5,φ=12°,C=10KN/m:
 
  Ka=tg2(450-Ψ/2)=tg2(450-120/2)=0.65
 
  则Ti=(19.5×1.5+0.65)×1×1/0.969=31KN<44KN
 
  满足要求。

  • 点赞(0
  • 反对(0
  • 举报(0
  • 收藏(0
  • 分享(12
评论(0)

登录后发表评论~