深厚软土地区基坑被动区加固设计
2015-07-20
393
0
核心提示:在基坑被动区进行水泥土加固,可以提高被动区抗力,提高基坑稳定性,为支护桩提供很好的嵌固层,是一种较为经济有效的技术措施。本文结合具体基坑工程,对被动区进行加固设计及基坑稳定性分析,通过实践应用表明该设计可行,对同类工程有一定的启示作用。
1引言
在深厚软土地区,由于软土具有天然含水量大、孔隙比大、压缩系数高、强度低等不良工程特性,且土层较厚,在基坑的设计和施工中,常常会因为基坑变形过大而造成重大工程事故。传统的加固方法包括主动区加固和被动区加固。主动区加固是指加固桩前的土体,被动区加固是指加固桩后的土体。部分学者通过理论分析证明了加固被动区土体比加固支护结构后的主动区土体更为有效,本文对深厚软土基坑被动区加固设计进行探讨。
2深厚软土层的基坑支护方法
2.1悬臂式排桩支护
悬臂式排桩支护是利用桩足够的入土深度和结构的抗弯能力来维持基坑的整体性和结构的安全性。常采用的桩型有钻孔桩、人工挖孔桩、灌注桩、预制桩、钢板桩。桩的排列形式有间隔排列、一字相接排列、交错相接排列、一字搭接排列等,在工程中应用最多的还是一字板间隔排列。
由于悬臂桩在桩顶不受约束,因此在对基坑边土体位移控制要求很高的时候,不宜采用这种方法,或者可以在坑内设置多层支撑或锚杆,减小基坑边土体的位移。对于变形较大的基坑,可以考虑选用双排桩。
2.2复合土钉支护结构
复合土钉支护技术是在土钉墙的技术上发展出来的。土钉墙是由天然土体通过土钉墙就地加固并与喷射砼面板相结合,形成一个类似重力挡墙以此来抵抗墙后的土压力的土挡墙。土钉墙是通过钻孔、插筋、注浆来设置的,一般称砂浆锚杆,也可以直接打入角钢、粗钢筋形成土钉。在深厚的软土层中,一般不宜选用土钉墙对基坑支护,而是通过将土钉墙与深层搅拌桩、树根桩及预应力锚杆等结合起来,通过各种组合而形成的新型复合基坑支护方法。这种方法大大扩展了土钉支护的应用范围,表现出了较好的综合效益。
2.3拉锚式围护结构
拉锚式支护结构由挡土结构和锚固部分组成,锚固结构有锚杆和地面拉锚两种,如图6所示。根据不同的开挖深度,可设置单层或多层锚杆,当有足够的场地设置锚桩或其他锚固物时可采用地面拉锚。
拉锚式支护结构一般用于场地狭小且需深开挖、周边环境对基坑土体的水平位移控制要求很严的基坑工程。
2.4沉井支护
沉井是用钢筋混凝土等材料制成的带有刃脚的箱形或筒形结构物。施工时,先就地制作第一节井筒,然后用人工或机械方法在井筒内挖土,使沉井在自重作用下克服阻力而下沉。沉井下沉的方法一般有静压法和振动法,还有气锤法。随着沉井的下沉,逐步加高井筒,沉到设计标高后,在其下端浇筑混凝土封底,如沉井作为地下结构物使用,则在其上端再接筑上部结构;如只作为建筑物基础使用的沉井,常用素混凝土或砂石填充井筒。
2.5坑内被动区土体加固
在土质很软的地区,由于被动区土压力不足,对排桩墙围护结构,必须有很大的插入深度,才能确保围护结构的稳定性。所以通常对坑内土体进行改良加固,以提高被动区土抗力,为支护桩提供较好的嵌固层。被动区加固的范围一般取3~6m,宽度取5~9m,常见的土体加固方法有:排水加固法、水泥土搅拌法、化学灌浆法、高压喷射法等。化学灌浆法十分昂贵,所以一般不常采用。水泥土搅拌法和化学灌浆法的加固原理相似,都是用掺入水泥的方法改善软土的性能,只是施工工艺不同而己。使用较为广泛的土体加固的方法是水泥土搅拌法。
3坑内被动区土体土质加固设计实例
某基坑工程位于广州南沙地区。主要地层情况为:杂填土厚2m,γ=19.5kN/m3,粘聚力为17kPa,内摩擦角13°;淤泥厚16.5m,γ=16.5kN/m3,粘聚力为l0kPa,内摩擦角12.5°,地下水位在地面以下0.8m,如图1所示。
图1基坑地层图
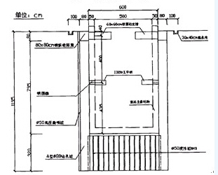
根据地质资料及周围环境,基坑设计为6m×24m的长方形,基坑深8m,支护结构采用排桩,设计为Φ80@950的钻孔桩,桩间布Φ50的高压旋喷桩做防水帷幕。坑内设两道支撑,第一道支撑在距坑顶1m处,采用60cm×60cm的钢筋砼支撑;第二道支撑在距桩顶4m处,采用I32b工字钢。桩顶设置80cm×80cm的圈梁。为保证基坑稳定和控制基坑变形及对邻近公共设施的影响,连续墙内侧被动区土体采用水泥搅拌加固,加固深度为3m,加固宽度为6m,采取块状加固,加固区水泥掺量为15%,水灰比为0.5,以水泥土龄期为30天的强度参数作为计算参数:γ=18kN/m3,内摩擦角25°,粘聚力为200kPa。基坑设计方案见图2和图3。
图2 基坑平面布置图

图3 基坑剖面布置图
基坑开挖步骤:
(1)在坑内设置搅拌桩加固,桩长3m;
(2)在坑周设置钻孔桩,桩长11m;
(3)在钻孔桩间布设旋喷桩;
(4)第一次开挖,开挖至地表下1.3m;
(5)在地表下lm处设置第一道支撑;
(6)第二次开挖,开挖至地表下4.3m;
(7)在地表下4m处设置第2道支撑;
(8)第三次开挖,开挖至地表下8m。
4结束语
在软土地区的基坑工程,因为软土强度低,压缩性高的特点无法提供足够的被动土压力,常常需要对被动区进行水泥土搅拌加固。加固后的形成的水泥土除了能够提供较大的被动土压力外,还可以为支护桩提供很好的嵌固层。但是由于水泥土强度具有时效性,龄期越高,强度越大。在基坑工程的设计和施工中往往由于无法确定其强度变化的规律性而忽略了这一特点。本文结合具体工程,对基坑工程进行时坑内加固设计和坑周支护设计,实践证明这一设计可行。
参考文献
[1]崔江余、梁仁旺.建筑基坑工程设计计算与施工[M].北京:中国建材工业出版社,2004
[2]徐杨青,朱小敏.长江中下游一级阶地地层结构特征及深基坑变形破坏模式分析[J].岩土工程学报,200628(s):179今1798
[3]申福亮.黄河三角洲软弱土层中的深基坑支护[J].建筑科学,2002.18(4):39-41
[4]金炯球,洪禧,黄国平.广州某深基坑支护优化设计实例分析[J].山西建筑,2005.31(19):77-78
[5]文东平,王岭.广州地区基坑支护形式简述[J].山西建筑,200733(19):113-114
[6]翟书起,赵著,张建明,张立德,王惠生.基坑支护结构中两桩合一的应用[J].施工技术,2006.35(9):81-83