桩基的一般规定
根据《建筑地基基础设计规范》,摩擦型桩的中心距不宜小于桩身直径的3倍;扩底灌注桩的中心距不宜小于扩底直径的1.5倍;当扩底直径大于2m时桩端净距不宜小于1m。在确定桩距时尚应考虑施工工艺中挤土等效应对邻近桩的影响。


2、扩底灌注桩的扩底直径不应大于桩身直径的3倍。
3、桩底进入持力层的深度根据地质条件荷载及施工工艺确定宜为桩身直径的1~3倍。在确定桩底进入持力层;深度时应考虑特殊土、岩溶以及震陷液化等影响。嵌岩灌注桩周边嵌入完整和较完整的未风化、微风化、中风化硬质岩体的最小深度不宜小于0.5m。
4、布置桩位时宜使桩基承载力合力点与竖向永久荷载合力作用点重合。
5、预制桩的混凝土强度等级不应低于C30,灌注桩不应低于C20,预应力桩不应低于C40。
6、桩的主筋应经计算确定,打入式预制桩的最小配筋率不宜小于0.8%,静压预制桩的最小配筋率不宜小于0.6%,灌注桩最小配筋率不宜小于0.2%~0.65%(小直径桩取大值)。
7 、配筋长度:
1) 受水平荷载和弯矩较大的桩配筋长度应通过计算确定;
2)桩基承台下存在淤泥淤泥质土或液化土层时配筋长度应穿过淤泥淤泥质土层或液化土层;
3) 坡地岸边的桩8度及8度以上地震区的桩抗拔桩嵌岩端承桩应通长配筋;
4) 桩径大于600mm的钻孔灌注桩构造钢筋的长度不宜小于桩长的2/3。
8、桩顶嵌入承台内的长度不宜小于50mm,主筋伸入承台内的锚固长度不宜小于钢筋直径(I级钢)的30倍和钢筋直径(II级钢和III级钢)的35倍。对于大直径灌注桩当采用一柱一桩时可设置承台或将桩和柱直接连接桩和柱的连接可按本规范第8.2.6条高杯口基础的要求选择截面尺寸和配筋柱纵筋插入桩身的长度应满足锚固长度的要求。
9、 在承台及地下室周围的回填中应满足填土密实性的要求。
桩的选型与布置
3.3.1 基桩可按下列规定分类:
1、按承载性状分类:
1) 摩擦型桩:
摩擦桩:在承载能力极限状态下,桩顶竖向荷载由桩侧阻力承受,桩端阻力小到可忽略不计;
端承摩擦桩:在承载能力极限状态下,桩顶竖向荷载主要由桩侧阻力承受。
2) 端承型桩:
端承桩:在承载能力极限状态下,桩顶竖向荷载由桩端阻力承受,桩侧阻力小到可忽略不计;
摩擦端承桩:在承载能力极限状态下,桩顶竖向荷载主要由桩端阻力承受。
2、 按成桩方法分类:
1) 非挤土桩:干作业法钻(挖)孔灌注桩、泥浆护壁法钻(挖)孔灌注桩、套管护壁法钻(挖)孔灌注桩;
2) 部分挤土桩:长螺旋压灌灌注桩、冲孔灌注桩、钻孔挤扩灌注桩、搅拌劲芯桩、预钻孔打入(静压)预制桩、打入(静压)式敞口钢管桩、敞口预应力混凝土空心桩和H 型钢桩;
3) 挤土桩:沉管灌注桩、沉管夯(挤)扩灌注桩、打入(静压)预制桩、闭口预应力混凝土空心桩和闭口钢管桩。
3 、按桩径(设计直径 d)大小分类:
1)小直径桩:d ≤250mm;
2)中等直径桩:250mm< d<800mm;
3)大直径桩:d ≥800mm。
3.3.2 桩型与成桩工艺应根据建筑结构类型、荷载性质、桩的使用功能、穿越土层、桩端持力层、地下水位、施工设备、施工环境、施工经验、制桩材料供应条件等,按安全适用、经济合理的原则选择。选择时可按本规范附录A 进行。
1、对于框架-核心筒等荷载分布很不均匀的桩筏基础,宜选择基桩尺寸和承载力可调性较大的桩型和工艺。
2、 挤土沉管灌注桩用于淤泥和淤泥质土层时,应局限于多层住宅桩基。
3.3.3 基桩的布置宜符合下列条件:
1、基桩的最小中心距应符合表3.3.3-1 的规定;当施工中采取减小挤土效应的可靠措施时,可根据当地经验适当减小。
2、排列基桩时,宜使桩群承载力合力点与竖向永久荷载合力作用点重合,并使基桩受水平力和力矩较大方向有较大抗弯截面模量。
3、对于桩箱基础、剪力墙结构桩筏(含平板和梁板式承台)基础,宜将桩布置于墙下。
4、对于框架-核心筒结构桩筏基础应按荷载分布考虑相互影响,将桩相对集中布置于核心筒和柱下,外围框架柱宜采用复合桩基,桩长宜小于核心筒下基桩(有合适桩端持力层时)。
5、应选择较硬土层作为桩端持力层。桩端全断面进入持力层的深度,对于黏性土、粉土不宜小于2d,砂土不宜小于1.5d,碎石类土,不宜小于1d。当存在软弱下卧层时,桩端以下硬持力层厚度不宜小于3d。
6、对于嵌岩桩,嵌岩深度应综合荷载、上覆土层、基岩、桩径、桩长诸因素确定;对于嵌入倾斜的完整和较完整岩的全断面深度不宜小于0.4d 且不小于0.5m,倾斜度大于30%的中风化岩,宜根据倾斜度及岩石完整性适当加大嵌岩深度;对于嵌入平整、完整的坚硬岩和较硬岩的深度不宜小于0.2d,且不应小于0.2m。
3.4.1 软土地基的桩基设计原则应符合下列规定:
1、软土中的桩基宜选择中、低压缩性土层作为桩端持力层;
2 、桩周围软土因自重固结、场地填土、地面大面积堆载、降低地下水位、大面积挤土沉桩等原因而产生的沉降大于基桩的沉降时,应视具体工程情况分析计算桩侧负摩阻力对基桩的影响;
3 、采用挤土桩时,应采取消减孔隙水压力和挤土效应的技术措施,减小挤土效应对成桩质量、邻近建筑物、道路、地下管线和基坑边坡等产生的不利影响;
4 、先成桩后开挖基坑时,必须合理安排基坑挖土顺序和控制分层开挖的深度,防止土体侧移对桩的影响。
3.4.3 季节性冻土和膨胀土地基中的桩基设计原则应符合下列规定:
1、 桩端进入冻深线或膨胀土的大气影响急剧层以下的深度应满足抗拔稳定性验算要求,且不得小于4 倍桩径及1 倍扩大端直径,最小深度应大于1.5m;
2 、为减小和消除冻胀或膨胀对建筑物桩基的作用,宜采用钻(挖)孔灌注桩;
3、确定基桩竖向极限承载力时,除不计入冻胀、膨胀深度范围内桩侧阻力外,还应考虑地基土的冻胀、膨胀作用,验算桩基的抗拔稳定性和桩身受拉承载力;
4、为消除桩基受冻胀或膨胀作用的危害,可在冻胀或膨胀深度范围内,沿桩周及承台作隔冻、隔胀处理。
3.4.4 岩溶地区的桩基设计原则应符合下列规定:
1、岩溶地区的桩基,宜采用钻、冲孔桩;
2、当单桩荷载较大,岩层埋深较浅时,宜采用嵌岩桩;
3、当基岩面起伏很大且埋深较大时,宜采用摩擦型灌注桩。
3.4.5 坡地岸边上桩基的设计原则应符合下列规定:
1、对建于坡地岸边的桩基,不得将桩支承于边坡潜在的滑动体上。桩端应进入潜在滑裂面以下稳定岩土层内的深度应能保证桩基的稳定;
2 、建筑桩基与边坡应保持一定的水平距离;建筑场地内的边坡必须是完全稳定的边坡,当有崩塌、滑坡等不良地质现象存在时,应按现行国家标准《建筑边坡工程技术规范》(GB50330)的规定进行整治,确保其稳定性;
3 、新建坡地、岸边建筑桩基工程应与建筑边坡工程统一规划,同步设计,合理确定施工顺序;
4 、不宜采用挤土桩;
5 、应验算最不利荷载效应组合下桩基的整体稳定性和基桩水平承载力。
3.4.6 抗震设防区桩基的设计原则应符合下列规定:
1、 桩进入液化土层以下稳定土层的长度(不包括桩尖部分)应按计算确定;对于碎石土,砾、粗、中砂,密实粉土,坚硬黏性土尚不应小于2~3 倍桩身直径,对其它非岩石土尚不宜小于4~5 倍桩身直径;
2 、承台和地下室侧墙周围应采用灰土、级配砂石、压实性较好的素土回填,并分层夯实,也可采用素混凝土回填;
3 、当承台周围为可液化土或地基承载力特征值小于40kPa(或不排水抗剪强度小于15kPa)的软土,且桩基水平承载力不满足计算要求时,可将承台外每侧1/2 承台边长范围内的土进行加固;
4、 对于存在液化扩展的地段,应验算桩基在土流动的侧向作用力下的稳定性。
3.4.7 可能出现负摩阻力的桩基设计原则应符合下列规定:
1 、对于填土建筑场地,宜先填土并保证填土的密实性,软土场地填土前应采取预设塑料排水板等措施,待填土地基沉降基本稳定后方可成桩;
2 、对于有地面大面积堆载的建筑物,应采取减小地面沉降对建筑物桩基影响的措施;
3 、对于自重湿陷性黄土地基,可采用强夯、挤密土桩等先行处理,消除上部或全部土的自重湿陷;对于欠固结土宜采取先期排水预压等措施;
4、 对于挤土沉桩,应采取消减超孔隙水压力、控制沉桩速率等措施;
5 、对于中性点以上的桩身可对表面进行处理,以减少负摩阻力。
3.4.8 抗拔桩基的设计原则应符合下列规定:
1 、应根据环境类别及水土对钢筋的腐蚀、钢筋种类对腐蚀的敏感性和荷载作用时间等因素确定抗拔桩的裂缝控制等级;
2 、对于严格要求不出现裂缝的一级裂缝控制等级,桩身应设置预应力筋;对于一般要求不出现裂缝的二级裂缝控制等级,桩身宜设置预应力筋;
3 、对于三级裂缝控制等级,应进行桩身裂缝宽度计算;
4 、当基桩抗拔承载力要求较高时,可采用桩侧后注浆、扩底等技术措施。
桩基的构造
根据《公路桥涵地基与基础设计规范》。以下为桩基的构造:
5.2.1钻孔桩设计直径不宜小于0.8m;挖孔桩直径或最小边宽度不宜小于1.2m;钢筋混凝土管桩直径可采用0.4~0.8m,管壁最小厚度不宜小于80mm。
5.2.2混凝土桩。
1 、桩身混凝土强度等级:钻(挖)孔桩、沉桩不应低于C25;管桩填芯混凝土不应低于C15。
2 、钢筋混凝土沉桩的桩身,应按运输、沉入和使用各阶段内力要求通长配筋。桩的两端和接桩区箍筋或螺旋筋的间距须加密,其值可取40-50mm。
3、 钻(挖)孔桩应按桩身内力大小分段配筋。当内力计算表明不需配筋时,应在桩顶3.0-5.0m内设构造钢筋。
1)桩内主筋直径不应小于16mm,每桩的主筋数量不应少于8根,其净距不应小于80mm且不应大于350mm。
2)如配筋较多,可采用束筋。组成束筋的单根钢筋直径不应大于36mm,组成束筋的单根钢筋根数,当其直径不大于28mm时不应多于3根,当其直径大于28mm时应为2根。束筋成束后等代直径为de=√nd,式中n为单束钢筋根数,d为单根钢筋直径。
3)钢筋保护层净距不应小于60mm。
4)闭合式箍筋或螺旋筋直径不应小于主筋直径的1/4,且不应小于8mm,其中距不应太于主筋直径的15倍且不应大于300mm。
5)钢筋笼骨架上每隔2.0--2.5m设置直径16--32mm的加劲箍一道。
6)钢筋笼四周应设置突出的定位钢筋、定位混凝土块,或采用其他定位措施。
7)钢筋笼底部的主筋宜稍向内弯曲,作为导向。
4、 钢筋混凝土预制桩的分节长度应根据施工条件决定,并应尽量减少接头数量。接头强度不应低于桩身强度,接头法兰盘不应突出于桩身之外,在沉桩时和使用过程中接头不应松动和开裂。
5 、桩端嵌入非饱和状态强风化岩的预应力混凝土敞口管桩,应采取有效的预防渗水软化桩端持力层的措施。
6 、河床岩层有冲刷时,钻孔桩有效深度应考虑岩层最低冲刷标高。
5.2.3钢桩。
1、钢桩可采用管型或H型,其材质应符合现行国家有关规范、标准规定。
2、钢桩焊接接头应采用等强度连接。使用的焊条、焊丝和焊剂应符合现行国家有关规范、标准规定。
3、钢桩的端部形式,应根据桩所穿越的土层、桩端持力层性质、桩的尺寸、挤土效应等因素综合考虑确定。
1)钢管桩可采用下列桩端形式:
①敞口带加强箍(带内隔板、不带内隔板)、敞口不带加强箍(带内隔板、不带内隔板);
②闭口平底、锥底。
2)H型钢可采用下列桩端形式:
①带端板;
②不带端板、锥底、平底(带扩大翼、不带扩大翼)。
4、 钢桩的防腐处理应符合下列规定:
1)海水环境中,钢桩的单面年平均腐蚀速度可按表5.2.3取值,有条件时也可根据观场实测确定。其他条件下,在平均低水位以上,年平均腐蚀速度可取0.06mm/年;平均低水位以下,年平均腐蚀速度可取0.03mm/年。
2)钢桩防腐处理可采用外表面涂防腐层、增加腐蚀余量和阴极保护等方法;当钢管桩内壁同外界隔绝时,可不考虑内壁防腐。
5.2.4桩的布置和中距。
1 、群桩的布置可采用对称形、梅花形或环形。
2 、桩的中距应符合以下要求:
1)摩擦桩。
锤击、静压沉桩,在桩端处的中距不应小于桩径(或边长)的3倍,对于软土地基宜适当增大;振动沉入砂土内的桩,在桩端处的中距不应小于桩径(或边长)的4倍。桩在承台底面处的中距不应小于桩径(或边长)的1.5倍。
钻孔桩中距不应小于桩径的2.5倍。
挖孔桩中距可参照钻孔桩采用。
2)端承桩。
支承或嵌固在基岩中的钻(挖)孔桩中距,不应小于桩径的2.0倍。
3)扩底灌注桩。
钻(挖)孔扩底灌注桩中距不应小于1.5倍扩底直径或扩底直径加1.0m,取较大者。
3 边桩(或角桩)外侧与承台边缘的距离,对于直径(或边长)小于或等于1.0m的桩,不应小于0.5倍桩径(或边长),并不应小于250mm;对于直径大于1.0m的桩,不应小于0.3倍桩径(或边长),并不应小于500mm。
5.2.5承台和横系梁的构造。
1、 承台的厚度宜为桩直径的1.0倍及以上,且不宜小于1.5m,混凝土强度等级不应低于C25。
2 、当桩顶直接埋入承台连接时,应在每根桩的顶面上设l--2层钢筋网。当桩顶主筋伸入承台时,承台在桩身混凝土顶端平面内须设一层钢筋网,在每米内(按每一方向)设钢筋网1200--1500mm2,钢筋直径采用12~16mm,钢筋网应通过桩顶且不应截断。承台的顶面和侧面应设置表层钢筋网,每个面在两个方向的截面面积均不宜小于400mm2/m,钢筋间距不应大于400mm。
3 、当用横系梁加强桩之间的整体性时,横系梁的高度可取为0.8---1.0倍桩的直径,宽度可取为0.6--1.0倍桩的直径。混凝土的强度等级不应低于C25。纵向钢筋不应少于横系梁截面面积的0.15%;箍筋直径不应小于8mm,其间距不应大于400mm。
5.2.6桩与承台、横系梁的连接应符合下列要求。
1、 桩顶直接埋入承台连接:当桩径(或边长)小于0.6m时,埋入长度不应小于2倍桩径(或边长);当桩径(或边长)为0.6--1.2m时,埋入长度不应小于1.2m;当桩径(或边长)大于1.2m时,埋入长度不应小于桩径(或边长)。
2 、桩顶主筋伸入承台连接:桩身嵌入承台内的深度可采用100mm;伸入承台内的桩顶主筋可做成喇叭形(与竖直线夹角大约为15°)。伸入承台内的主筋长度,光圆钢筋不应小于30倍钢筋直径(设弯钩),带肋钢筋不应小于35倍钢筋直径(不设弯钩)。
3、 对于大直径灌注桩,当采用一柱一桩时,可设置横系梁或将桩与柱直接连接。
4 、管桩与承台连接时,伸入承台内的纵向钢筋如采用插筋,插筋数量不应少于4根,直径不应小于16mm,锚入承台长度不宜少于35倍钢筋直径,插入管桩顶填芯混凝土长度不宜小于1.0m。
5 、横系梁的主钢筋应伸入桩内,其长度不小于35倍主筋直径。
桩基为什么要用C35
1 《公路钢筋混凝土及预应力混凝土桥涵设计规范》(JTG 3362-2018)(2018年11月01日实施)第3.1.2条,当采用强度标准值400MPa及以上钢筋时,不低于C30;第4.5.3条,环境类别Ⅰ类-一般环境,桥梁主体结构设计使用年限100年,混凝土强度等级最低要求:桥墩C30,桩基C25。


《公路钢筋混凝土及预应力混凝土桥涵设计规范》(JTG 3362-2018)第4.5条。
《公路工程混凝土结构耐久性设计规范》(JTG/T 3310-2019)(2019年9月01日实施)第5.3.2条,桥墩混凝土等级为C35,承台、基础为C30。规范均已明确混凝土标号均为最低强度等级,为方便施工避免出现差错,将下部结构桥墩与基础的混凝土等级统一采用C35是满足规范的要求的。

《公路工程混凝土结构耐久性设计规范》(JTG/T 3310-2019)表5.3.2-1。
2 《公路桥梁抗震设计规范》(JTG/T 2231-01-2020)第7.1.2条,在E2地震作用下桥梁基础按能力保护原则设计即基本不发生损伤。从结构设计角度看,桩基受力性能应强于桥墩受力性能方可满足规范要求,以确保下部结构安全可靠。因此桩基与桥墩混凝土标号均采用C35,桩基结构尺寸及配筋均强于桥墩。若将桩基混凝土型号降低一个等级,需要增大桩基直径或增加桥墩配筋率来满足桩基受力需要,势必会增加工程造价。
就桩基混凝土做了三种方案研究:C35方案为某项目施工图采用方案,C30方案一为采用低标号混凝土增大配筋方案,混凝土量相对C35方案不变,C30方案二为采用低标号混凝土增大桩基直接方案,钢筋量相对C35方案不变。下表为三种方案经济对比表。
不同桩基混凝土方案对比表

结论:全线桥梁桩基混凝土约419320立方米,差价为15元/方,C30方案一较C35方案混凝土造价减少629万元,钢筋造价增加4266万元,总造价增加3637万。C30方案二较C35方案混凝土造价增加6730万元,钢筋造价相同,总造价增加6730万。
3 实际施工时,为提高混凝土制备、运输和浇筑等施工环节的质量和加强控制,避免出现不必要的差错和提高管理水平且C30与C35两种等级混凝土价格差距较小。
综合上述几点,将桩基混凝土和桥墩混凝土等级统一取用C35既保证结构安全又方便施工。
桩基施工措施
一、钢护筒概述
钢护筒就是在进行人工挖孔桩的过程中,由于土质不稳定,施工钢筋混凝土护壁存在较大难度所以采用钢质的护壁对孔桩进行保护,防止塌孔避免影响施工进度及安全。钢护筒就是根据孔桩的大小用铁皮箍成的一个圆形的两头都是空的桶。


一般灌注桩需要钢护筒,钢护筒长度没有强制性规定,一般看现场地质情况定。
简单来说钢护筒主要有3个作用:
1、隔挡孔口的石块、异物等掉入孔中。
在道路,河流,湖泊或铁路下水平或定向钻孔时,可以使用钢护筒。
通常钢护筒非常耐用且用途广泛,因此,它也可以用于各种建筑项目。



保证孔中水头高过地下水1m以上。钢护筒规格尺寸和直径有多种,有直缝,螺旋焊,轧制和焊接类型。钢护筒最常用于地下钻孔,以包裹和保护管道。在街道,公路,铁路,河流和溪流下的水平地下钻探项目中,可以将钢护筒分段地顶入一个钻孔中。



松散地层施工,护壁、防止漏浆。将护筒段通过焊接或使用特殊连接件连接在一起。安装护筒的另一种常用方法是将管焊接成带状,然后将管定向拉过先前钻的孔。可用于在公路,铁路,湖泊和河流下安装护筒。


二、钢护筒结构设计
1、钢护筒孔口结构
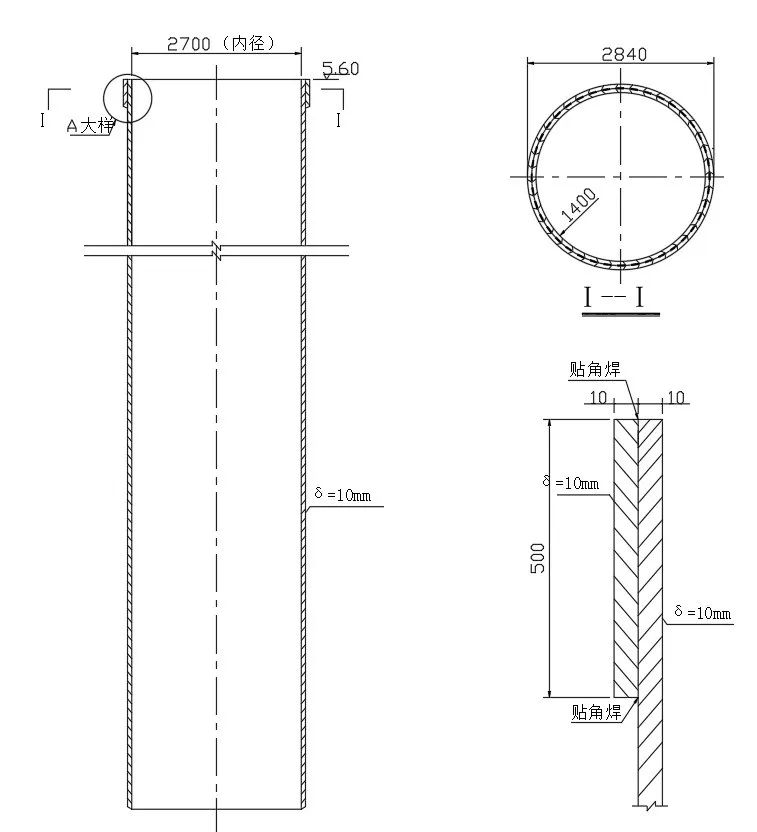
根据桥位处的水文条件、钢护筒下放过程中的受力情况,以及满足钢护筒顶口振打和底口入土的要求,对钢护筒结构的进行了设计,最终确定钢护筒直径2.7m,采用壁厚10mm的Q235钢板卷制。为避免钢护筒在下沉过程中发生变形,分别对钢护筒的顶口和底口进行加强。护铜顶端采用同钢护筒厚度相同的钢板进行加强,加强长度为500mm;钢护筒顶部加强钢板与钢护筒采用跳焊连接,每条焊缝长150mm,净间距150mm,如图1所示。钢护筒底部设置3道500mm的加强抱箍和9根(间距1m)纵向加劲槽钢[8。底口抱箍和纵向加劲肋安装位置结构。


2、导向架设计与制作
2.1为保证钢护筒的准确定位及竖直度,采用定位导向架定位,定位导向架采用钢桁结构,长6m。导向架结构形式见图3所示。
2.2导向架主要作用:保证钢护筒在自重作用下及在连续施振时能够垂直入土下沉。
3、导向架安装固定
3.1导向架采用吊车吊装移位,并固定在已完成的钻孔平台的钢护筒设计顶口位置。
3.2导向架的下端悬臂段采用“井”字形型钢固定在平台周边的钢管桩的上下平联上,或将导向架与井字架焊成整体然后固定在钢护筒周围的钢管桩上。
3.3导向装置内设置有供钢护筒定位、纠偏、调整的液压千斤顶和锁定装置。利用撬棍等对钢护筒进行微调定位、施沉过程中纠偏,利用木楔和I32a工字钢等对调整后钢护筒进行锁定。

4、吊耳设置
工程施工前护筒由吊车采用两点起吊,经运输车平移至桩架前,竖起来后由履带吊的起重机单点起吊,两点起吊的吊点位置和单点起吊的吊点如下图所示。

吊耳采用厚度为25mm的Q235钢板,底板尺寸为竖向20cm×环向15cm,耳板尺寸为径向20cm,环向10cm(耳宽),孔径为5cm。
5、内支撑设置
为防止护筒起吊、运输过程中变形,钢护筒内部设置Φ32钢筋米字撑(如图5所示)。在运输过程中只允许堆放两层,并做好护筒之间的隔垫保护,避免挤压变形。护筒吊装前要及时检查支撑是否存在松动脱焊现象,如发现则及时测量护筒的椭圆度,并调整后补焊。

三、钢护筒的施工
根据钢护筒的主要结构参数及工程量表可以看出,单节钢护筒最大长度与最小长度。
1、施工工艺流程
单根钢护筒沉放工艺流程如下:导向架安装定位→首节护筒入导向架→测量校核→首节护筒振动下沉→测量校核→第二节接长、焊缝检验→第二次振动下沉→移走导向架→继续振动下沉到位→防护措施。
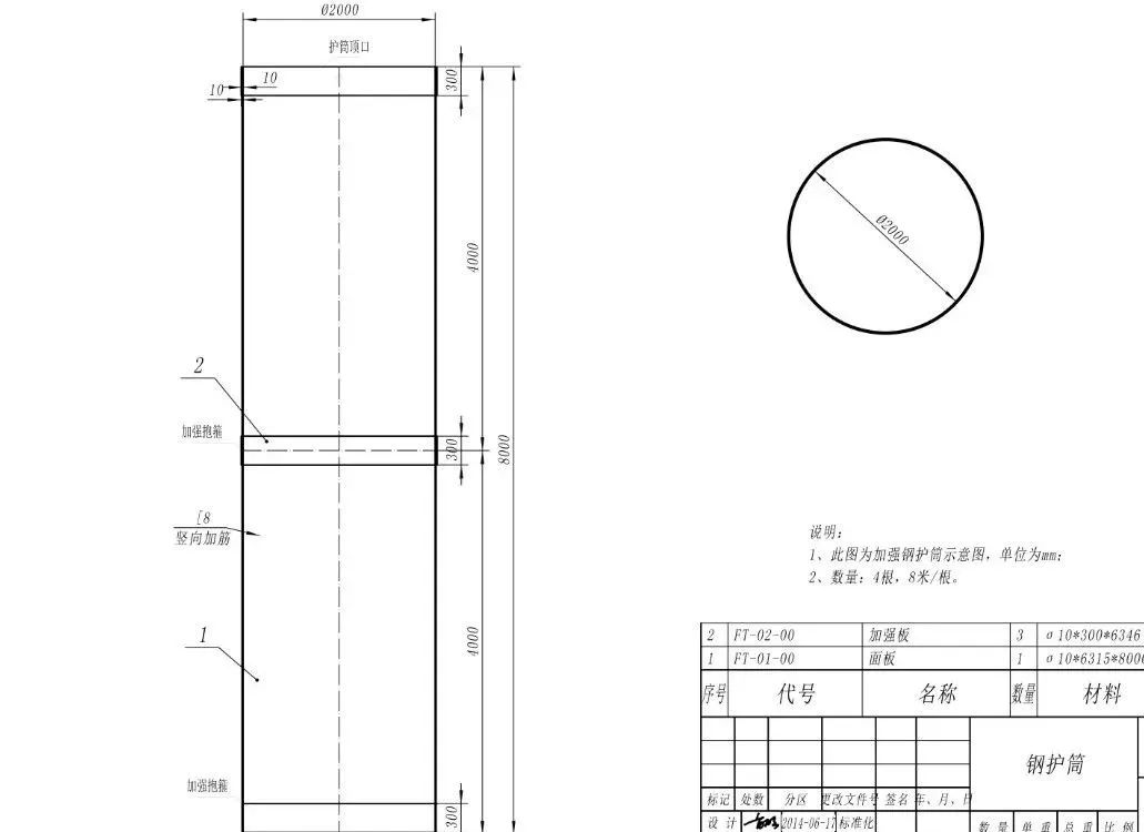
2、钢护筒分节方案(如下表所示)

3、首节钢护筒沉放
3.1首节护筒沉入
3.1.1吊装:用50吨履带吊吊起**节钢护筒,垂直立放在定位架内并临时固定。
3.1.2夹管:撤下大钩改挂DZ135振锤,使其下端的液压夹持器夹紧护筒顶端,同时挂上辅助钢丝绳。
3.1.3对位:将夹紧的钢护筒吊起,移动大钩使钢护筒下端对准已固定好导向架孔口,在沉桩前先用自重下沉,移动夹桩器的位置,使钢护筒顶面在同一水平面上,然后徐徐下放钢护筒至海床面。
3.2首节护筒孔底坐标及竖直度控制
施工中护筒的精度主要取决于护筒着床时的精度,所以对护筒插打着床时的定位至关重要,测量人员必须进行认真、细致的观测调整。
**节护筒的竖直度及底口坐标采用管内浮球检测法进行控制。具体方法为:

**步,下护筒前,在护筒底口上方2m左右的管壁对称焊四个φ12mm细钢筋圈。
第二步,下护筒时,用两条尼龙绳交叉穿系在钢筋上,形成十字形状。
第三步,在十字绳交叉位置系一条尼龙线,长度低于护筒内水位,并保证浮球正好在水面以下10~100cm左右,以能看见浮球,但不浮出水面为宜。
当钢护筒着床时,护筒内的水基本处于静止状态,可以通过浮球的位置来判断钢护筒底口位置是否偏离设计位置。
3.3首节护筒固定
当护筒着床并定位后,应立即在钢护筒上焊接倒挂牛腿,测量校核,利用木楔锁定钢护筒,使首节钢护筒固定在导向架上。
4、第二节钢护筒沉放
4.1吊装第二节钢护筒,焊接第二节护筒。
4.2在相互垂直的两个方向设监测点,指挥吊车操作,使钢护筒自然垂直对准桩位,启动振锤;同时,吊车大钩稍放松,并控制大钩下降速度以便护筒在保持垂直的状态下沉入土中。两个观测点连续观测钢护筒的垂直度,发现有倾斜倾向立即调整大钩位置进行纠正。
4.3履带吊配合振动锤进行钢护筒沉放。振拔锤对钢护筒振入时,先采用自重下沉,在确保钢护筒的位置准确,桩身有足够的稳定性后,再采用振动下沉。
4.4在振动过程中,振动锤、夹桩器等必须连接可靠,其中心与护筒中心、钻孔桩中心应尽量保持在一条直线上。偏差控制在5cm以内。
4.5护筒着床后,需对护筒进行认真精密测量,根据测量结果进行细致调整,测量时可在平台上同时设点,以便于测量交汇,插打过程中通过测量来控制护筒的位置和标高。
4.6因考虑潮位影响及通视程度等因素,护筒定位现场完成计算,计算数据应相互校核,以保证计算的正确性。
5、钢护筒施工质量控制
5.1.1钢护筒的沉放时机宜选择在平潮时进行;起吊前应确认导向架是否安放到位,氧割、电焊机等是否能正常使用。
5.1.2在平潮的一个小时前先将**节钢护筒放到平台上,并确认好缆绳的起吊方式。等到平潮时将钢护筒竖起转换成垂直吊。履带吊将护筒从侧面吊入导向架,根据测量员的指导进行垂直度的调整。
5.1.3平面位置和垂直度调整到设计值之后,履带吊慢慢放下钢护筒,使钢护筒沿导向架下沉至海底并入土。待钢护筒自重下沉稳定后,起吊振动锤至钢护筒顶口并调整振动锤的位置,使其重心在钢护筒的中心位置。
四、图纸介绍
