上海浦东张江集电港止水帷幕工程TRD工法应用
2020-09-30
871
0
核心提示:上工机械TRD工法机自2013年推向市场以来,迎合国内TRD工法施工大趋势,不断改进完善性能质量,陆续突破施工难度记录,技术水平遥遥领先同行,深受客户信赖。
工程概况
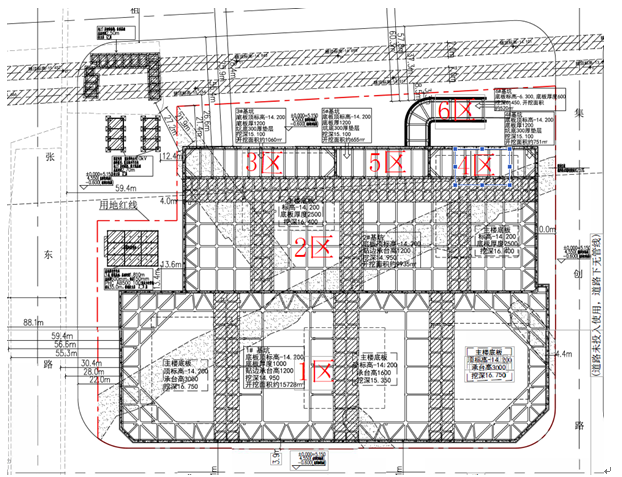
上海浦东张江集电港B区3-2信息技术产业平台项目位于上海市浦东新区张江,本场地东侧(集创路)、南侧(集电路)为在建市政道路;北侧为地下轨道交通二号线(广兰路~唐镇区间段),拟建地下车库边界距营运中的轨道交通二号线外边界仅约8.5m左右;西侧为现状市政道路张东路,距离拟建地下车库边界最近处35m左右;另在张东路与祖中之路交叉口东南角建有国家电网开关站,与拟建地下地库相距11m左右;周边道路底下埋有各类地下管线。

张江项目示意图
项目邻近地铁2号线,短距离内电力、信息、天然气管道大量聚集,地质条件复杂地下水丰富,主要为暗浜和厚填土为主。3-5区地下室结构外边线与地铁区间隧道结构外边线最小净距约26.6m。6区汽车坡道外边线与地铁隧道结构外边线最小净距离约8.5m。基坑边线平行地铁延长距离180.0m。本项目基坑开挖面积约28473m2,开挖深度约14.95m。本区间隧道顶覆土厚度约13.40~14.65m。
为保护地铁及周边建筑,本工程采用基坑南侧地铁保护线50m以外,地连墙外侧槽壁加固采用700mm等厚度型钢水泥土搅拌墙作为围护结构。TRD搅拌墙计划7月31日开始施工至11月13日完成,设计成槽宽度800mm,切割深度47m,横向切割长度约500m,施工总面积18600m³,计划施工105天。
TRD施工工艺流程图
本项目采用上工机械全新研发的TRD-70工法机进行施工,设计方充分考虑TRD工法施工特点。TRD工法设备具有:设备高度低、机架重心低、安全稳定性好,可满足城市中心区域低净空环境的施工。TRD工法自引入中国市场后得到迅猛发展,截止2019年底施工方量统计约为330万m³、TRD总项目数超300个。
上工机械TRD工法机自2013年推向市场以来,迎合国内TRD工法施工大趋势,不断改进完善性能质量,陆续突破施工难度记录,技术水平遥遥领先同行,深受客户信赖。广泛应用于全国止水帷幕工程施工领域,积累了大量成功案例。其中TRD-60D/E工法机在南京复杂地层有63m深度的成功经验;TRD-80E工法机在浦东硬X射线项目中刷新设备施工深度记录,达到86m。
为满足国内70m以内等厚大深度止水墙施工对于TRD工法设备的施工深度要求,上工机械于2020年推出电驱动TRD-70E工法机,自2020年7月入驻上海浦东张江集电港B区3-2信息技术产业平台项目止水帷幕工程施工。上工机械TRD-70E工法机截止发稿之日,平均每日成墙12-13m,深度47m,成槽宽度800mm。达到设计要求,确保现场施工效率和成墙质量,得到施工方一致认可。
TRD-70E工法机

上工机械TRD-70E工法机主要特点
1、双动力系统可与D型柴油发动机动力柜互换,提供多样化动力选择;
2、横向切割力大、位移直线度好、立柱系统水平、垂直度高;
3、专利技术切割箱楔形压板连接方式,提高切割型连接刚性;
4、独特的双喷浆功能,喷浆能力更强劲,改善大深度帷幕成墙均一性;
5、设备拼装、维保更便捷,故障率更低;
6、最大施工深度达到70m。
为了使TRD新用户能全面地了解上工机械TRD工法设备的各项性能,正确掌握操作操作技能,上工机械负责组织进行TRD工法设备专业培训,以提高上工机械TRD的新老用户在设备使用、维护方面的技能。培训项目包括:理论培训、驻点带教培训,资深行业专家团队带教,内容涵盖TRD工法理论知识、上机操作、维修保养等各个方面。培训结束通过考核并颁发证书,让您从新手迅速成长为TRD工法机操作施工行家。

资深行业专家一站式带教服务