已挖深基坑土钉墙支护施工初探

2015-09-11 288 0
核心提示:  摘要:利用土钉墙的施工方法对已挖深基坑进行支护,以限制土体变形的发展,增强边坡土体自身的稳定性。本文简要介绍了实际工

   摘要:利用土钉墙的施工方法对已挖深基坑进行支护,以限制土体变形的发展,增强边坡土体自身的稳定性。本文简要介绍了实际工程中用土钉墙支护深基坑的施工方法。

 
  前言:土钉墙支护,是用于土体开挖和深基坑施工时保证边坡稳定的一种新技术。90年代以来,在国内许多城市的工程建设中得到了推广应用,它是由挡土墙和锚杆发展起来的,在土体内放置一定长度和分布密集的土钉(即钢筋)与土共同作用,以弥补土体自身强度不足,并在坡面上制作与土钉形成一体的钢筋网喷射砼面层(即土钉墙),以限制土体变形的发展,增强边坡土体自身的稳定性。保证土体边坡和深基坑安全的一种施工方法。
 
  一、工程概况
 
  某综合楼工程,建筑面积36000m2。结构形式为框架结构,地下二层车库,一至三层为公企,四至十九层为住宅。
 
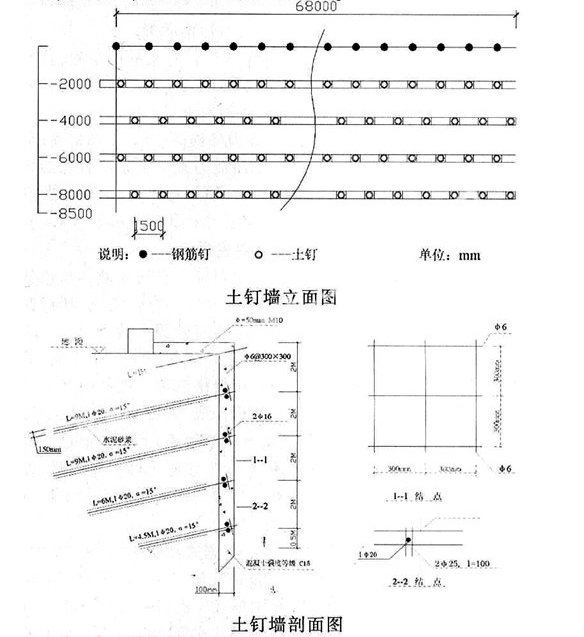
  该工程基坑在进入施工现场前,业主已自行开挖完毕。由于施工现场狭窄,开挖时坡度放的很小。基坑面积为3398m2,东侧长为68m,北侧长34.3m,东、北两侧开挖深度为8.5m,支护面积为867m2,采用土钉墙支护。西、南侧地势较低,开挖深度为4m,故无需护坡。

  二、工艺原理及流程特点
 
  1.工艺原理:
 
  土钉墙支护原理是将土钉通过滑裂面将基坑周围土体加固,土钉与土共同作用,形成能大大提高原状土强度和刚度的复合土体,在土体受力条件改变时,通过土钉加固与土的摩擦力,使土钉被动受拉而给土体以约束加固,使其稳定。它是由密集的土钉群、被加固的原位土体、喷射砼面层和必要的防水系统等组成。
 
  2.工艺流程
 
  编制施工方案及施工准备→修坡→孔位布点→土钉成孔→按土钉钢筋→注浆→绑钢筋网→焊压筋→喷射砼→抹坡顶面层→养护
 
  3.主要特点:
 
  土钉墙支护方法是将抗拉强度很低的土体与注浆钢筋组成复合体,并与基抗侧壁喷射的钢筋砼结构共同工作,保证施工中基坑边坡稳定的一种深基坑支护方法。具有以下特点:
 
  (1)施工便捷安全,土钉制作与成孔简单易行,灵活性强,便于各种形式的基抗支护设计。
 
  (2)对施工场地狭小,大型护坡施工设备不便操作时,有其独特优越性。
 
  (3)稳定可靠,支护后边坡位移小。
 
  (4)施工工期短,便于已挖完土方深基坑支护的抢险,对一般工程而言,可边挖土边支护,基本不占用施工工期。
 
  (5)经济效益显著、费用低,与其它支护类型相比,造价降低很多。
 
  4施工方法:
 
  4.1采用洛阳铲,四人用一把铲,进行人工钻孔,孔径为ф150mm。土钉是用1ф20螺纹钢筋制作而成。砼配合比水泥:砂:豆石:水=1:2.5:0.45:0.45。砼强度等级为C15,钢筋网与土体接触面保护层为20mm,掺水泥用量的2‰速凝剂。根据设计要求,第一排用钢筋钉(即长度为1m的钢筋直接打入土中即为钢筋钉),剩余四排采用土钉锚固,土钉排距为2m,水平间距为1.5m,土钉水平夹角为15°。沿边坡自上而下按土钉层位标高以下300mm为作业面,搭设架子作业平台,长为34m,宽为8m,长度为68m分两段施工。
 

 
       4.2施工操作要点:
 
  (1)根据基坑情况进行土钉墙结构设计,结合现场条件编制施工方案。
 
  (2)放线孔位布置,基坑由上而下依次成孔,成孔用洛阳铲人工成孔,孔径、孔深、孔距、倾角均满足设计要求。
 
  (3)为了保证该钢筋伸入孔中居中,置钉沿钢筋长度每隔2m设置定位支架,钢筋沿孔通常设置。
 
  (4)注浆,用注浆机选用工作压力0.2MPa将水灰比0.5的水泥浆(或砂浆)通过注浆导管,注入孔底,同时将导管匀速缓慢撤出,保证孔内气体全部排出,导管离孔口0.5-1m时,高压(1MPa)注满,并持压3min,注浆材料中应加入早强剂和膨胀剂。
 
  (5)铺设钢筋网片,沿基坑侧壁铺设ф6-ф8钢筋网,网格尺寸150-300mm。
 
  (6)焊接钢筋网片压筋,采用2ф16螺纹钢,沿水平方向通长设置固定钢筋网,该压筋应与土钉主筋焊接牢固,并符合规定的保护层厚度。
 
  (7)喷射砼面层,喷射砼应自下而上进行,喷头距受喷处1m左右,射流方向垂直指向喷射面,喷射砼中加入速凝剂,当砼面层厚度超过100mm时,应分两次喷射,基坑底处砼面层应插入基坑底部以下不小于0.2m。
 
  (8)基坑顶做散水抹灰,防两水冲刷渗漏,厚度为50mm,强度等级为M10水泥砂浆。终凝后喷水养护5-7d。
 
  (9)边坡上堆载不得超过设计要求,地下工程施工过程对支护结构设专人监测并记录。
 
  5.安全技术措施
 
  (1)施工前应对工人进行安全教育,配专职安全员随时检查,施工中要专门设一名了望人员随时观察是否有局部坍塌情况。进场人员必须佩带安全帽,高空作业人员经常检查跳板稳定性。
 
  (2)施工中用电应有专职电工把守,不得自行乱接。
 
  (3)技术员应进行每根锚杆隐蔽检查验收,对成孔深度,注浆密实程度,钢筋焊接进行检查,按规定验收。
 
  (4)注浆喷射人员带好劳动保护,喷射作业处理堵管时,应将输料管顺直,必须紧接喷头,疏通管路的工作风压不得大于0.4Mpa。非操作人员不得进入施工作业区,空压机手没有喷射机手的指示不得送风。喷头、注浆管前严禁站人。
 

 
       6.质量验收标准
 
  土钉墙施工应符合《建筑基坑支护技术规程》JGJ120-99要求。
 
  三、经济效益分析:
 
  实践证明:深基坑工程实施土钉墙支护,不但在技术上是可行的,而且经济上也具有极大的优势性。如果采用传统的内撑式排桩结构,支撑及支护费用高达到210万元,而本工程采用土钉墙结构,其工程费用仅为40万元,为工程的建设节约了大量的费用。
 
  从工期面言:土钉墙支护不占用工程工期,护壁和桩基础可同时进行,而采用其它支护系统时一般要占用工程40天左右的时间,本工程采用土钉墙支护只用10天时间,为工程的提前充分保证了施工工期。

  四、结束语
 
  通过实际工程的应用,证明采用土钉墙支护方法,对于已开挖的深基坑进行支护,不仅提高了工期,而且节省了大量的资金。技术上是可靠且先进的。
 
  

  • 点赞(0
  • 反对(0
  • 举报(0
  • 收藏(0
  • 分享(9
评论(0)

登录后发表评论~