细节决定成败丨土方、防水施工细部节点图文详解

2015-09-09 1360 0
核心提示:  一、土方工程  1、土钉墙基坑支护  工艺说明:  具体土钉数量、长度、位置、网片要求等根据专业设计计算确定。土钉长度

   一、土方工程


  1、土钉墙——基坑支护

  工艺说明:
 
  具体土钉数量、长度、位置、网片要求等根据专业设计计算确定。土钉长度宜为开挖深度0.5-1.2倍,间距1-2m,与水平面夹角为5°-20°;土钉钢筋宜采用HRB335、HRB400级,直径16-32㎜,钻孔直径宜为70-120㎜;注浆强度等级不低于M10。面层混凝土等级不低于C20,钢筋保护层厚度不宜小于20㎜.
 
  施工顺序为:修坡→成孔→安装土钉→灌浆→绑扎网片和加强筋→喷射混凝土。土钉支护宜在排除地下水的条件下施工。混凝土喷射机输送水平距离不宜小于100m,垂直距离不宜小于30m。空压机选用风量9m³/min以上,风压大于0.MPa,输料管应能承受0.8MPa以上压力。
 
细节决定成败丨土方、防水施工细部节点图文详解




 
  2、灌注桩——基坑支护

  工艺说明:
 
  具体桩径、桩长、嵌固深度、配筋等根据设计计算确定。悬臂式结构桩径不宜小于600mm.排桩顶部应设钢筋混凝土冠梁连接,冠梁宽度(水平方向)不宜小于桩径,冠梁高度(竖直方向)不宜小于400mm。排桩与桩顶冠梁的混凝土强度等级宜大于C20;当冠梁作为联系梁时可按构造配筋。
 
  施工顺序为:钻机成孔→吊放钢筋笼→浇筑混凝土→冠梁施工。桩位允许偏差50mm,垂直度允许偏差不大于0.5%。加劲箍筋与主筋采用电焊焊接,螺旋箍筋与主筋采用绑扎连接。
 

 
  3、拉锚——基坑支护

  工艺说明:
 
  具体锚杆数量、直径、长度、位置等及嵌固深度根据设计计算确定。拉锚可以与排桩结合。也可以与土钉墙结合使用。
 
  施工顺序为:钻机成孔→下锚索→灌浆→养护→锚具安装→锚杆张拉。孔位允许偏差不大于100mm;偏斜度不大于3%;锚固段强度大于15MPa并达到设计强度75%方可张拉。锚杆锚在桩间,通过型钢腰梁将锚固力传到桩身。
 

 
  4、基坑内支护——基坑支护

  工艺说明:
 
  对于排桩、板墙式支护结构,当基坑深度较大时,为维护墙受力合理和控制变形,需增设支撑点。在坑内架设支撑称为内支撑;在坑外设拉支撑则称为拉锚。内支撑通常有钢结构支撑和钢筋混凝土支撑。支撑拆除前应在主体结构与支护之间设置可靠的换撑传力构件或回填夯实。
 
  钢结构支撑要求:钢结构支撑构件的连接可采用焊接或高强螺栓连接;腰梁连接节点宜设置在支撑点的附近,且不应超过支撑间距的1/3;钢腰梁与排桩、地下连续墙之间宜采用不低于C20细石混凝土填充;钢腰梁与钢支撑的连接节点应设加劲板。
 
  钢筋混凝土支撑要求:构件的混凝土强度等级不应低于C20;支撑体系在同一平面内应整体浇筑,基坑平面转角处的腰梁连接点应按刚节点设计。内支撑的选型、平面布置、截面、节点连接等均需严格进行具体设计。



  5、回填土分层铺摊——人工回填



  工艺说明:
 
  填土分层虚铺厚度和压实遍数应符合上表规定。当分段回填时,接缝处每层应错开1m以上。冬期回填每层铺土厚度应比正常施工时减少20%~25%,其中冻土含量不得超过15%,其粒径不大于150㎜,常温回填土粒径不大于50㎜。

  6、管道处回填——人工回填



  工艺说明:
 
  管道下方受管道限制,已无法使用机械夯实,采用人工从管道下方挤密夯实;管道两侧及正上方500㎜范围内用人工夯实,避免损坏管道。管道以上500㎜外,正常使用机械夯实。冬期回填管沟底至管顶0.5m范围内不得使用含有冻土的回填土。

  7、土方开挖—机械挖土

  1)土方开挖图



  工艺说明:
 
  土方开挖前应首先绘制土方开挖图。开挖图要标示出基坑上口线、下口线、垫层边线、基础边线、基底标高、深挖部分标高上下口线,以及所有线的平面位置。
 
  2)开挖顺序图(大小步结合)





  工艺说明:
 
  护坡形式为土钉墙时,通常采用大小步结合开挖方法。本图以2大步6小步为例绘制。首先,完成3小步的开挖后,再向中心区域完成1大步开挖;然后,按此顺序完成下方的土方开挖,预留300mm土层;最后,人工清土至槽底。分层厚度按照现场实际条件和土钉墙的设计方案综合考虑确定。冬期施工必须防止基础下的土遭受冻结。应预留松土或覆盖。

  二、地基与基础

  接桩———CFG桩





  工艺说明:
 
  桩顶标高若低于设计标高,先将桩顶修平、凿毛、用比CFG桩桩身混凝土高一个强度等级的素混凝土接桩至设计桩顶标高。一般桩顶保护桩长不少于0.5m。

  三、防水工程

  1、混凝土防水——底板及地下室外墙防水

  工艺说明:
 
  适用于地下室防水等级为1-4级的整体式防水混凝土结构。水泥强度等级不应低于32.5MPa;砂宜用中砂,不得为碱活性骨料,含泥量不得大于3%,泥块含量不得大于1%;石子粒径宜为5-40mm,含泥量不得大于1%,泥块含量不得大于0.5%。不得使用碱活性骨料;防水混凝土可掺入一定数量的粉煤灰、磨细矿渣粉、硅粉等,粉煤灰的级别不应低于Ⅱ级,掺量不宜大于20%,硅粉等其他掺和料的掺量应经过试验确定;防水混凝土可根据工程需要掺入减水剂、膨胀剂、密实剂、引气剂、防水剂、复合型外加剂、水泥渗透结晶型防水材料、钢纤维或合成纤维等,其品种及掺量应根据试验确定,技术性能应符合现行国家或行业标准一等品及以上的质量要求。



  1)底板及地下室外墙卷材防水



  工艺说明:
 
  底板垫层混凝土平面部位的卷材宜采用空铺法或点粘法,其他与混凝土结构相接触的部位应采用满粘法;卷材接缝必须粘贴严密,接缝口宽度不应小于10mm;在立面与平面的转角处,卷材的接缝应留在平面上,距立面不应小于600mm;阴阳角处找平层应做成圆弧或45°(135°)角,并应增加1层相同的卷材,宽度不宜小于500mm;防水基层必须平整、牢固,铺贴卷材前应使基层表面干燥,基层含水率小于9%,新作业面施工前先用简易法测基层含水率,即用1㎡的卷材覆盖4h后察看凝结水情况,若无凝结水即可进行卷材的铺贴。

  2)地下室外墙水泥基渗透结晶型涂料防水



  工艺说明:
 
  施工前15min左右将施工面提前用干净水浇透;刮涂时应用力按刀,使刮刀与被涂面的倾斜角为50°~60°,按刀要用力均匀。涂层一般刮涂一至两遍,总厚度达到0.8mm。刮涂后的防水涂层,必须在初凝前马上用油漆刷醮水涂刷均匀;防水涂层施工完毕,须采用干净的雾状水喷洒养护。
 
  3)底板及地下室外墙聚氨酯涂膜防水



  工艺说明:
 
  施工缝、墙面的管根、阴阳角、变形缝等细部薄弱环节,应先做一层加层。将已搅拌好的聚氨酯涂膜防水材料用塑料或橡胶刮板均匀涂刮在已涂好底胶的基层表面,刮两遍,总厚度为1.2-2.0mm。外墙防水接茬时,应将砖墙拆除两层。

  4)底板及防水卷材错槎接缝



  工艺说明:
 
  两幅卷材的搭接长度,长边与短边均不应小于100mm。相邻两幅卷材接缝应错开1/3-1/2幅宽,上下两层卷材接缝应错开1500-1600mm,上下层卷材不得相互垂直铺贴。阴角及附加层做法同底板及地下室外墙防水。

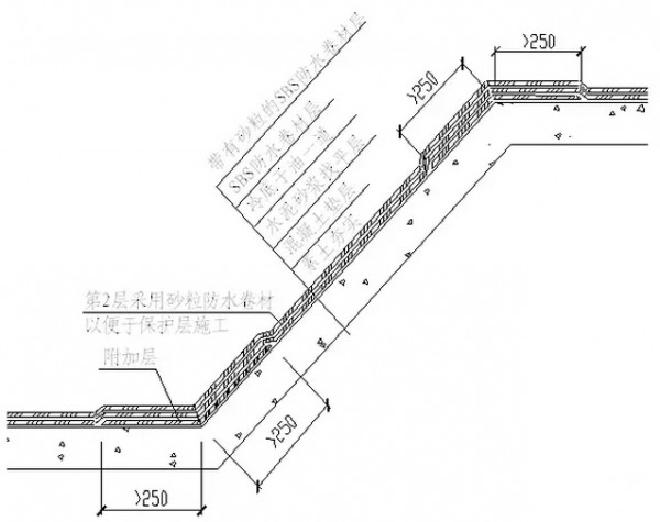
  2、电梯井、集水坑防水——特殊部位的细部构造





  工艺说明:
 
  电梯井、积水坑基层阴阳角必须做成≥50mm的圆弧或45°(135°)八字角,阴阳角、立面内角、外角及施工缝处均做500mm宽的附加层。电梯井、积水坑斜面的第二层防水卷材采用带有砂粒的,以便于防水保护层的施工。
 
  3、外墙后浇带防水——特殊部位的细部构造



  工艺说明:
 
  地下室外墙后浇带在做防水施工前,内侧的卷材保护层先施工。铺贴外墙卷材时,先在预制板外侧铺一层防水加强层,然后大面卷材直接铺过与之盖板。绑扎墙体钢筋时,用附加筋将止水钢板固定墙体中间。
 
  4、底板后浇带防水——特殊部位的细部构造



  工艺说明:
 
  底板后浇带处先做防水卷材附加层,再大面卷材防水卷材。在绑扎底板钢筋时,用附加钢筋将橡胶止水带和钢止水带分别固定在底板后浇带的底部和中间。
 
  5、外墙防水卷材搭接——特殊部位的细部构造



  工艺说明:
 
  铺贴外墙卷材之前,应先将接槎部位的卷材揭开,并将其表面清理干净,如卷材有局部损伤,应及时进行修补后方可继续施工,两层卷材应错槎接缝,错开距离不得小于350㎜,上层卷材应盖过下层卷材。两幅卷材的搭接长度,长边与短边均应不小于100mm。
 
  6、外墙散水防水——特殊部位的细部构造



  工艺说明:
 
  防水收口位置设置在距室外散水150mm处,末端先用3mmX25mm金属压条钢钉固定(间距200mm),用钢钉固定后再用密封胶将上口密封。散水与外墙之间预留30mm宽的缝隙,采用嵌缝油膏灌严。
 
  7、施工缝止水钢板——特殊部位的细部构造



  工艺说明:
 
  钢板的凹面应朝向迎水面,转角处止水钢板应做成45°角。止水钢板居中布置。橡胶止水带及钢板橡胶止水带做法同上。
 
  8、施工缝止水条——特殊部位的细部构造



  工艺说明:
 
  在浇筑混凝土时,在施工缝部位埋植30mm×10mm木条,沿墙厚居中留置出宽30mm、深10mm通长凹槽,混凝土接缝前将止水条放入凹槽内,用水泥钉固定。遇水膨胀止水条应具有缓胀性能,7d膨胀率不应大于低膨胀率的60%。
 
  9、墙体竖向施工缝止水带——特殊部位的细部构造



  工艺说明:
 
  在支设结构模板时,把止水带的中间夹于木模上,同时将木板钉在木模上,并把止水带的翼边用钢丝固定在侧模上,然后浇筑混凝土,待混凝土达到一定强度后,拆除端模,用钢丝将止水带另一翼边固定在侧模上,再浇筑另一侧的混凝土。
 
  10、柔性穿墙管迎水面防水——特殊部位的细部构造



  工艺说明:
 
  在进行大面积防水卷材铺贴前,应先穿好带有止水环的设备管道(止水环外径比套管内径小4mm),并固定好,设备管道与套管之间的缝隙先填塞沥青麻丝,再填塞聚硫密封膏,将防水卷材收口嵌入设备管道与套管之间的缝隙,再用聚硫密封膏灌实,最后做一层矩形加强层防水卷材。穿墙管与内墙角凹凸部位的距离应大于250mm,管与管的间距应大于300mm。
 
  11、螺栓孔眼处理——特殊部位的细部构造



  工艺说明:
 
  拆模后将预埋的垫块取出,沿混凝土结构边缘将螺栓割断,对割断处进行涂刷防锈漆处理后,嵌入防水油膏(嵌入2/3),最后用聚合物砂浆将螺栓眼抹平。
 
  12、卷材防水层封边(一)——特殊部位的细部构造



  工艺说明:
 
  防水收口位置设置在距室外散水下150mm处,浇筑墙体混凝土时应预留凹槽,防水末端先用3㎜×25㎜,金属压条钢钉固定(间距500㎜再用密封膏封闭。
 
  13、卷材防水层封边(二)——特殊部位的细部构造



  工艺说明:
 
  防水收口位置设置在距室外散水下150mm处,浇筑墙体混凝土时应预留凹槽,防水卷材施工时,将防水卷材端部压在凹槽中,待室外散水施工完再用密封膏将凹槽及散水与外墙缝隙灌严。
 
  14、卷材防水层甩槎——特殊部位的细部构造



  工艺说明:
 
  从底板折向里面的卷材与永久保护墙的接触部位,采用空铺法施工。2层卷材接槎部位先甩出搭接长度300mm、450mm,顶端临时用石灰砂浆砌四皮砖固定。待结构墙体做外防外贴卷材防水层时,分层错槎接缝。
 
  15、顶板变形缝防水——特殊部位的细部构造



  工艺说明:
 
  结构底板变形缝处所用的中埋式橡胶止水带用钢筋卡具将其固定在相应位置,变形缝内贴聚苯板。
 
  16、卷材防水层平面阴阳角——特殊部位的细部构造



  工艺说明:
 
  平面阴阳角附加层卷材按上图所示形状的下料和裁剪。附加层卷材铺贴时,不要拉紧,要自然松铺,无皱折即可。

  17、卷材防水层三面阴角——特殊部位的细部构造



  工艺说明:
 
  三面阴角附加层卷材按上图所示形状的下料和裁剪。附加层卷材铺贴时,不要拉紧,要自然松铺,无皱折即可。
 
  18、外墙阳角防水——特殊部位的细部构造



  工艺说明:
 
  外墙防水基层必须平整、牢固,表面尘土、砂层等杂物清扫干净,且不得有凹凸不平、松动空鼓、起砂、开裂等缺陷;表面的阳角处,均应做成圆弧形或钝角,阳角圆弧半径为50mm,阳角部位加铺一层卷材加强层,加强层采用聚酯毡胎体加厚的SBS防水卷材,加强层过角线两层各不小于250mm。
 
  19、桩头防水——特殊部位的细部构造





  工艺说明:
 
  在桩头、桩侧及桩侧外围200mm范围内垫层的表面涂刷水泥基渗透结晶型防水涂料,在桩头根部及桩头钢筋根部凹槽内埋设遇水膨胀橡胶条,在桩顶、桩侧及桩侧外围300mm范围内垫层上表面5mm厚聚合水泥防水砂浆。待基层达到卷材施工条件时进行大面积防水卷材施工,卷材施工完毕后在桩侧与卷材接缝处嵌聚硫嵌缝膏。

  20、卷材防水铺贴顺序——特殊部位的细部构造



  工艺说明:
 
  先铺贴阴阳角等部位的加强层,在将地坑、后浇带等处的防水卷材铺贴完毕厚再铺大面。先铺平面,后铺立面,交叉处应交叉搭接。

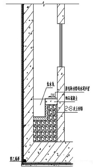
  21、窗井防水——特殊部位的细部构造



  工艺说明:
 
  采光井内先用2:8灰土回填夯实,再浇筑细石混凝土层;集水坑用灰砂砖砌筑;集水坑及细石混凝土层表面均抹掺有防水粉的水泥砂浆,向集水坑找坡。
 
  22、外墙聚苯板保护——防水保护





  工艺说明:
 
  肥槽(地下室外墙或基础墙以外的未回填的槽叫做肥槽)回填前,先用建筑胶将聚苯板点粘贴在防水层(随着回填高度进行),在回填土夯实时,不得破坏聚苯板保护层,根部采用人工夯实。

  • 点赞(0
  • 反对(0
  • 举报(0
  • 收藏(0
  • 分享(4
评论(0)

登录后发表评论~