大直径高压旋喷桩+双排钻孔灌注桩复合式基坑支护结构工作性状

2015-08-11 404 0
核心提示:  摘要:针对深厚软弱地层且特殊施工环境下的基坑围护,多采用大直径高压旋喷桩+双排钻孔灌注桩复合式支护结构,为研究该支护结

  摘要:针对深厚软弱地层且特殊施工环境下的基坑围护,多采用大直径高压旋喷桩+双排钻孔灌注桩复合式支护结构,为研究该支护结构的工作性状,通过数值计算、现场监测等,分析不同的旋喷桩加固与灌注桩施作组合工况下,支护结构的变形、地表沉降以及桩间土的塑性区分布与塑性应变水平等变化特征。结果表明:大直径高压旋喷桩+双排钻孔灌注桩复合式支护结构能有效控制基坑变形,而仅施作双排灌注桩或仅采用旋喷桩加固,均不能满足基坑安全的要求;相比排桩数量而言,旋喷加固参数对支护结构的工作性状影响更为显著。该项研究可为今后类似支护结构的设计和应用提供参考。

关键词:深基坑;旋喷桩;双排灌注桩;复合式支护
 
  0引言
 
  随着地下空间开发利用越来越被人们重视,城市基坑工程得到了较快发展。由于城市地下管线众多,基坑上方往往存在重要电缆、管线等障碍物穿越而无法动迁,隔断了围护结构的连续性,为了应对工程中出现的复杂施工条件,各种不同形式的基坑支护结构也应运而生。大直径高压旋喷桩+双排钻孔灌注桩复合式基坑支护结构就是其中的一种复杂支护形式,它采用大直径、高强度的旋喷桩加固基坑周边软土,同时,在旋喷桩中施作双排灌注桩,并结合基坑内支撑组成复合式支护结构,可以较好地起到止水和挡土作用,且能灵活避开障碍物。
 
  旋喷桩技术成熟于日本对二重管和三重管的开发,随后在大直径旋喷桩上形成SSS-MAN工法、RJP工法和MJS工法,解决了旋喷桩成桩过程差异性大、桩身质量难以保证等问题。双排桩是由前后2排竖向平行的桩组合而成,为了充分利用空间协同作用,在桩顶利用连梁将2排桩连成整体,提高桩体的整体刚度。经过众多学者的研究,双排桩技术已经形成了较为系统的理论。大直径高压旋喷桩+双排钻孔灌注桩复合式基坑支护结构结合了旋喷桩和双排桩两者的特点,使得结构稳定性和安全性都大大提高,且遇障碍物可以灵活调整支护参数(桩间距)。虽然,实际工程中这种加筋旋喷桩支护结构时常出现,但是,其设计计算理论还不完善,大都借鉴SMW工法桩或双排桩的设计方法进行简单验算,因此需要对该类复合式支护结构的工作性状进行深入研究,为提出合理的设计计算方法提供基础。本文结合某具体工程实例,通过数值计算、现场监测等,对这种复合式支护结构的工作性状进行研究。
 
  1工程概况
 
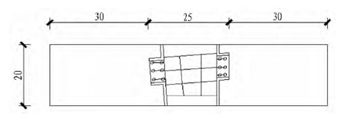
  某基坑最大开挖深度为16.0m,设4道支撑、1道盖板(盖挖施工),地下连续墙围护结构深度为31m。在深基坑施工过程中,由于场地存在横穿的高压电缆,围护结构在此处需做开口处理,经方案比选,采取大直径高压旋喷桩+双排钻孔灌注桩复合式支护结构,详见图1。开口处旋喷桩直径为2.5m、长度为30m,桩体无侧限抗压强度设计为3MPa;双排钻孔灌注桩直径为1.0m、长度为30m,排距为1.7~2.5m,桩间距根据高压电缆的间距而设。
 
  

图1复合式支护区域平面示意图
 
  场地土层主要以填土、黏土、淤泥质粉质黏土及粉质黏土夹粉砂为主,基坑坑底处于淤泥质粉质黏土内,围护结构插入粉质黏土夹粉砂层。土层的物理力学指标如表1所示。
 
表1场地土层的物理力学指标

 
 
  2有限元计算模型和模拟过程
 
  计算模型取实际基坑的一节段,宽度为20m,模型计算深度取40m,基坑开挖的影响区域为墙后30m范围。计算模型的尺寸如图2所示。
 
  

图2模型尺寸(单位:m)
 
  实际施工过程为分步开挖、先撑后挖,可将基坑开挖与支撑施工过程分为7个步骤:1)进行场地地应力平衡;2)施作地下连续墙,进行旋喷桩加固并在加固区内施作双排灌注桩;3)开挖第1层土,施作第1道支撑;4)开挖第2层土,施作盖板;5)开挖第3层土,施作第2道支撑;6)开挖第4层土,施作第3道支撑;7)开挖第5层土,施作第4道支撑。
 
  采用有限元分析软件MIDAS进行计算。旋喷加固水泥土的计算参数为:黏聚力120kPa、内摩擦角35°、弹性模量150MPa。原状土及加固土均采用摩尔-库伦弹塑性本构模型;地下连续墙、支撑及灌注桩采用钢筋混凝土线弹性材料模拟,弹性模量为30GPa。
 
  3计算结果与实测比较
 
  按照上述步骤可计算得到每一步施工工况下基坑周边土体、地下连续墙、支撑梁和立柱等各部件的位移及内力变化情况。
 
  基坑开挖完成后的地应力分布情况如图3所示,Y向水平位移云图如图4所示,沉降云图如图5所示。
 
  从监测结果中选取地下连续墙测斜点CX4-16、灌注桩测斜点CX-GZ01以及地表沉降点DB4-5(见图1),与数值计算值进行比较,如图6和7所示。
 
  

图3开挖完成后地应力分布

  

图4开挖完成后Y向水平位移

  

图5开挖完成后土体沉降云图
 
  比较图6和图7可以看出,无论是地表沉降、地下连续墙的深层水平位移还是灌注桩的深层水平位移,数值计算结果与实测结果都较为吻合,因此本次数值计算的模型和参数选取都是合理的,为下一步研究分析奠定了基础。

  

图6DB4-5点数值计算结果与实测值

 

图7水平位移数值计算结果与实测值对比
 
  4不同支护工况的对比分析
 
  为研究大直径高压旋喷桩+双排灌注桩复合式基坑支护结构工作性状,采用数值计算对不同工况下桩间土体的最大水平位移、塑性区以及塑性应变、灌注桩的最大水平位移和地表最大沉降等进行对比分析。1)工况1:仅施作双排灌注桩;2)工况2:仅采用旋喷桩加固;3)工况3:采用旋喷桩加固并施作双排灌注桩;4)工况4:采用旋喷桩加固但施作单排灌注桩;5)工况5:旋喷桩加固强度参数减半并施作双排灌注桩。
 
  图8和图9分别给出了典型工况下桩间土体的水平位移云图和塑性区云图。表2给出了不同工况的计算结果。
 
  

(a)加固并施作双排灌注桩

  

(b)不加固仅施作双排灌注桩

图8典型工况下桩间土水平位移云图

  

(a)加固并施作双排灌注桩

  

(b)不加固仅施作双排灌注桩

图9典型工况下桩间土塑性区云图

表2不同工况关键点计算数值

  
 
  从工况1计算结果可以看出,仅施作双排灌注桩不能满足结构安全的要求。这是因为灌注桩的直径虽然达到了1.0m,但是桩间距为3倍桩径左右,而土体多属于淤泥质土,并不能在桩间形成土拱效应,导致桩间土体滑出破坏。
 
  从工况2计算结果可以看出,仅采用旋喷桩加固,桩间土的最大塑性应变达到了2.9%,且从云图中可以看出塑性区几乎覆盖了整个支护体系的范围,因此,也不能满足结构安全的要求。
 
  对比工况2和工况3可以看出,在土体加固基础上,再套打灌注桩对于结构的变形控制效果比较明显:桩间土的最大变形减少了约50%,塑性区明显减少。
 
  因为土体加固,桩间土的强度大大增加,可以在桩间形成土拱,在土拱的作用下,整个加固区的变形减小。因此可以认为此时支护结构已经达到安全要求。
 
  对比工况4和工况3可以看出,如果单从侧向最大位移和塑性应变最大值来看,采用单排桩或双排桩对于结构变形的影响并不大,但采用单排桩的塑性区比双排桩的塑性区增大了3~4倍,这对于整个结构的稳定也是不利的。
 
  对比工况4和工况3可以看出,加固土的强度对于桩间土的变形、塑性应变以及塑性区的影响较大。这是由于加固土体的强度降低,桩间形成的土拱变弱,使得塑性变形和塑性区都增大。
 
  从表2中DB4-5测点的最大沉降值可以看出,对于软土地层中本复合式支护结构,地面竖向沉降和桩间土水平变形的关系较为密切,较大的桩间土水平位移会引起周围土体较大的竖向沉降。因此,对于本复合式支护结构,控制基坑周边竖向沉降的关键在于对桩间土水平变形的控制。
 
  5结论与体会
 
  1)通过对实际工程的数值模拟结果可以看出,基坑开挖引起的地下连续墙变形、地面沉降和灌注桩水平变形都与实测值相吻合。
 
  2)大直径高压旋喷桩+双排钻孔灌注桩复合式支护结构能有效控制基坑变形,而仅施作双排灌注桩或仅采用旋喷桩加固,均不能满足基坑安全的要求;相比排桩数量而言,旋喷加固参数对支护结构的工作性状影响更为显著。采用旋喷桩加固并施作双排灌注桩方案相比仅施作双排灌注桩方案基坑的最大侧向位移减少60%以上,最大塑性应变减少85%以上。
 
  3)对于软土地层中本复合式支护结构,基坑周边的沉降主要是由于桩间土的水平变形引起的,因此,控制基坑周边地表沉降的关键在于控制桩间土的水平变形。
 
  作者:黄俊陈方伟赵光邢冬冬肖军华
 
  转自《隧道建设》
 

  • 点赞(0
  • 反对(0
  • 举报(0
  • 收藏(0
  • 分享(16
评论(0)

登录后发表评论~