PCMW工法在基坑支护中的应用

2015-08-05 614 0
核心提示:本文介绍采用管桩水泥土复合墙(PCMW工法)这一新型基坑支护技术,并附工程实例。


 
  一、前言
 
  一般认为,无论从力学还是从变形控制角度来看,管桩不宜作深基坑的支护结构,但在本文介绍的采用管桩水泥土复合墙(PCMW工法)这一新型基坑支护技术应用之后,也许会改变你的传统思维。
 
  二、工程案例
 
  (一)工程简介及特点
 
  1、工程简介
 
  湛江某大厦由28层主楼、4层裙楼组成,设置两层地下室,结构体系为框架剪力墙结构。基础形式为桩基础,桩基础采用
 
  钻孔灌注桩。基坑总开挖面积约为4680㎡.周长约为290m。设计标高采用黄海高程,该地周边自然地面相对标高为0.000~0.600m,考虑基础高度及垫层厚度后,基坑开挖深度11.1-11.7m。
 
  2.工程特点
 
  (1)土质条件差:基坑开挖影响深度范围内,浅部为填土,以下为粉砂及粉土层,工程性质差。
 
  (2)土体含水丰富:地下水主要为潜水,土层渗透系数较大。土层含水量高,影响基坑开挖的稳定性。
 
  (3)周边环境条件差:基坑东西两侧为建筑物,东侧建筑物距地下室外墙仅3.00m。南北两侧为道路.距地下室外墙约3.50~4.00m。基坑开挖对变形控制要求高,为保证路面不开裂,建筑物不沉降,须对基坑周边采取支护措施。
 
  (4)支护方洼新:采用管桩水泥土复合墙(PCVIW工法)这一新型基坑支护技术。
 
  二、工程地质条件
 
  根据该场地岩土工程勘察报告,原地貌景观形态已改变,现地形平坦,场地南部原有平房尚未拆除。拟建场地地面标高最大值11.35m,最小值10.50m(黄海高程),地表相对高差0.85m。
 
  1.土层分布
 
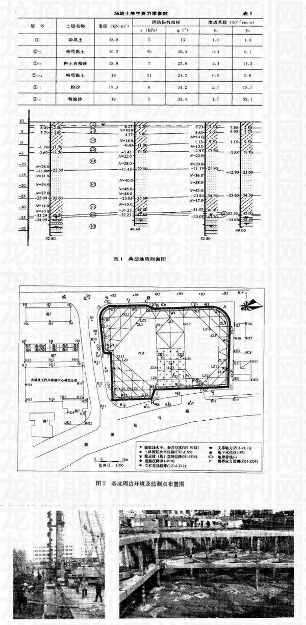
  根据野外钻探、原位测试及室内土工试验资料,将勘探深度范围内的岩土按照时代、成因及物理力学性质划分为5层,共10个亚层,其中主要土层自上而下分别为杂填土、粉质黏土、粉土夹粉砂、粉质黏土、粉砂、粉细砂。基坑开挖影响范围内各土层主要物理力学性质指标见表1,典型地质剖面图如图1所示。
 
  场地土层主要力学参数表1
 
  2、地下水
 
  本场地地下水属潜水,主要赋存于①层填土、②层以及③-1层、③-2层,由大气降水、地表水补给,以蒸发和渗流形式排泄。勘探期间有部分钻孔测得的初见水位埋深为1.80~2.20m,相应标高为8.50~9.01m;稳定水位埋深为1.60~2.10m,相应标高为8.72~9.53m。地下水位的年变幅约为0.5m。近年最高地下水位约为10.00m。
 
  (三)基坑周边环境概况
 
  基坑北侧地下室外墙与该侧用地红线最近距离约为3.0m,与模范马路最近距离约3.5m;南仙野下室外墙与用地红线最近距离约为3.0m,与该侧新模范马路最近距离约为3.5m;东侧地下室外墙与用地红线最小距离约为3.0m,与东侧建筑物最近距离约3.0m;西侧地下室外墙距离用地红线最小约为3.1m,与该侧道路最近距离约3.5m。周边道路下埋设了众多市政管线。基坑击边环境示意图见图2.
 
  (四)支护结构设计
 
  1.基坑支护总体设计思路
 
  本工程基坑开挖深度较深,场地临近道路和建筑物,环境条件较差,对围护结构稳定性和变形控制要求高。
 
  PCMW工法,即在三轴水泥搅拌土中插入预应力管桩形成水泥土止水、预应力管桩承担土体荷载的复合支护结构,是一种新型深基坑支护方法。PCMW工法施工现场及基坑照片见图3。该工法比地下连续墙支护形式节省造价,又比钻孔灌注桩节省支护空间,实际工程中也证明了其防侧壁止水防渗性能好。PCMW工法支护桩体刚度大、变形小,占地少,工艺构造简单,工程造价较低,工期短,可以较好解决复杂场地条件下的支护问题。
 
  本基坑工程采用如下设汁方案:围护结构采用PCMW工法桩(三轴搅拌桩内插预应力高强混凝土管桩)结合二道钢筋混凝土支撑.管桩采用GZH-Ⅲ800(180)@1200(《先张法预应力混凝土支护桩》(苏(G/T20-2010》;采用φ850@1200三轴深搅桩作止
 
  水帷幕;坑中坑部位挖深为3.65m,采用混凝土钻孔灌注桩支护;其余浅坑采用放坡.坡比1:2.0;基坑顶部设置排水沟,兼做截水作用,坑内采用疏干井降水。
 
  2.围护体设计
 
  PCMW丁法桩作为围护体和止水帷幕,作为围护桩的管桩桩长19m,止水帷幕有效长度23.7m。AB(ID段止水帷幕插入坑底以下12.2m,排桩插入坑底以下7.5m,DEF-GHU段止水帷幕插入坑底以下12.1m,排桩插入坑底以下7.4m,JA段止水帷幕插入坑底以下12.1m,排桩插入坑底以下6.9m。坑中坑的深坑部位挖深为3.65m,采用混凝土钻孔灌注桩支护,有效长度9m,插入坑底以下5.35rn。经设计计算,管桩的抗弯及抗剪均满足设计要求。PCMW工法桩的管桩及止水帷幕平面布置图如图4所示,围护结构剖面如图5所示。
 
  3、水平支撑体系设计
 
  本工程基坑竖向设置两道钢筋混凝土支撑,混凝土等级为C35,第一道支撑中心标高-1.400m,第二道支撑中心标高-7.000m。两道撑的尺寸及中心标高等参数见表2,支撑平面布置及实景图如图6所示。支撑构件轴线偏差应控制在规范允许范围内,构件浇筑平整,单根支撑不得留有施工缝;圈梁、支撑钢筋需通长布设,混凝土支撑钢筋需锚入圈梁35d;混凝土支撑节点需包住钢立柱。
 
  基坑实施阶段在第一道混凝土支撑的中部区域设置施工栈桥平台,工作机械等设备可以运作通行,还可以作为堆放施工材料的场所,在加快基坑出土速度的同时,缩短基坑工程施工期限。
 
  支撑截面信息表表2
 
  项目 中心标高(m) 圈梁(mm) 圈梁(mm) 主撑(mm) 八字撑(mm) 联系梁(mm) 栈桥梁(mm)
 
  第一道支撑 -1.400 1200×800 1200×1000 700×800 600×700 500×600 800×1000
 
  第二道支撑 -7.000 1400×800 1400×800 900×800 700×800 600×700 -
 
  4、立柱和立柱桩设计
 
  本工程立柱采用角钢格构柱,立柱桩采用钻孔灌注桩。栈桥立柱采用540mm×540mm角钢格构柱钢立柱,支撑立柱采用480mm×480mm角钢格构柱钢立柱,基坑底面以下为φ800mm钻孔灌注桩,格构柱保证进入基坑底面以下立桩桩长不小于3.0m。钢立柱在底板范围内应设置止水片,立柱桩的打入方向应与主撑方向一致,位置选择应避开工程桩、地梁及小型承台等,如相对冲突,立柱桩位置可作适当调整。
 
  三、结束语
 
  工程已竣工,从监测的数据看,变形与位移情况良好。
 
  【参考文献】
 
  1、《建筑基坑工程检测技术规范》GB50497-09
 
  2、《建筑地基基础设计规范》GB50007-02
 
  3、《建筑基坑支护技术规程》JGJ120-2012

  • 点赞(0
  • 反对(0
  • 举报(0
  • 收藏(0
  • 分享(10
评论(0)

登录后发表评论~