新型SMW工法钻机及其基坑支护绿色施工新技术

2015-07-30 499 0
核心提示:朱雪峰 刘继平 徐永(中铁科工集团轨道交通装备有限公司,武汉430223)  摘要:本文介绍了新型SMW工法桩的工艺原理及特点;叙

朱雪峰 刘继平 徐永
 
(中铁科工集团轨道交通装备有限公司,武汉430223)
 
  摘要:本文介绍了新型SMW工法桩的工艺原理及特点;叙述了新型SMW工法钻机创造性的关键技术以及系列新SMW工法钻机创造的社会效益和经济效益。并对广东东莞等地新型SMW工法桩与同类型工法桩的社会效益和经济效益进行了对比分析,可为今后类似工程提供参考。
 
  关键词:SMW工法桩;干湿喷搅拌;基坑支护
 
  SMW(SoilMixingWall)工法即型钢水泥土搅拌墙,它是采用大直径、大扭矩单轴或三轴连续搅拌钻进并喷水泥浆,随后插入H型或其它芯材从而形成的止水挡土水泥土地下连续墙加支护结构。在坑基施工回填后型钢可拔出回收,于下一工地使用,原先的软土经改善变为硬土。使得该结构成为基坑支护绿色施工的典范,具有很好的社会经济效益。新型SMW工法钻机及其基坑支护新技术采用独特的双管干湿喷搅拌技术,可单独进行喷粉或喷浆施工,也可进行喷粉、喷浆或喷水混合施工,可减小搅拌和钻进阻力,成桩质量好。
 
  一、这种工法主要特点有:
 
  1)止水性好,渗透系数可达10-6级;
 
  2)对周围的地层影响较小;
 
  3)施工效率高,可以缩短周期;
 
  4)可以使用H型钢等材料做芯材,使其具备较大的抗弯、抗压能力,起到即防渗止水又挡土支护作用的连续墙体,实现一墙多用;
 
  5)施工振动小、噪音低;
 
  6)H型钢可回收再利用、节约资源、降低造价、符合国家大力提倡的节能减排、降低污染、资源再利用、可持续发展的产业发展政策。
 
  二、系列SMW工法新型钻机创造性的关键技术
 
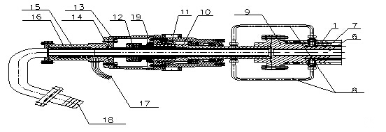
  2.1研制了一种用于干湿喷搅拌工艺的钻具,该钻具采用独立的喷粉、喷水或喷浆通道及供粉、供水或供浆系统,以适应不同的地质环境,改善成桩效果;同时在施工中采用较高压(4-6Mpa)BW250型泥浆泵输送水泥浆液,强化喷射水泥浆液的能力,扩大了泥浆的有效喷射半径并减小了搅拌和钻进阻力。
 
  传统的水泥土搅拌桩施工采用喷粉或者喷浆单一式干喷或湿喷搅拌工艺。单独的湿喷工艺钻具不宜在存在暗流的湿性比较大的沿海地区使用,浆液易随暗流流走,成桩效果差;单独的干喷工艺钻具施工时钻进阻力大,搅拌均匀性差,能耗高,效率低。
 
  实施干湿喷工艺时,喷水时机根据施工条件而定,当喷粉施工搅拌困难时,适时在钻头底部喷入一定量的水,减少搅拌阻力,降低能耗,提高施工效率,解决了水泥土搅拌桩进行单一喷粉或者单一喷浆工艺施工不能满足的复杂环境施工的技术难题。
 
1-钻杆、2-钻头、3-钻杆下接头、4-锁紧螺母、5-螺栓、6-钻头接头、7-O型圈
 
         喷水通道7、喷粉管道6、主轴及水龙头芯管14、密封衬管16、水管8
旋转套管12、第一密封座19、第二密封座15、缸套11、水入口17、水泥粉入口18
 
  2.2回转与钻进、提升采用独立动力驱动,速度可独立控制,实现回转与钻进、提升速度最佳匹配,提高搅拌均匀性和施工工效。
 
  传统的普通水泥土搅拌桩机无额外加压力,钻进加压力来自钻杆和动力头的自重,钻进速度无法与钻杆转速匹配。独立的调速电机驱动,控制部分独立开来,不用踩离合器就可以直接控制。加压和提升力大大提高,钻进和提升效果更好。
 
  钻进和提升系统改进后的布置图
 
  2.3研制了独立的夹桩和压桩装置,复合桩桩芯为型钢、方形预制桩、预制管桩时,采用液压驱动抱压式,桩芯为异型预制桩时,采用顶压式。
 
  传统的普通搅拌桩机只能进行¢500mm以下水泥土搅拌桩的施工,如要在搅拌桩中心再插入其它骨芯,必须另外配备一台昂贵的压桩专用设备,设备的购置费用将大幅提高,同时也增加了人工成本。本项目研制的大直径复合桩机成桩直径最大达到¢1150mm,且能根据不同的施工要求在已经施工的搅拌桩中插入不同的芯材,形成性能更好的复合桩。
 
  根据复合桩桩芯的不同型号,研制了了多种压桩方式的压桩机构。复合桩桩芯为型钢、方形预制桩、预制管桩时,采用液压驱动抱压式,桩芯为异型预制桩时,采用顶压式。
 
25m抱压式大直径复合搅拌桩机在广东东莞市中堂镇富盈乡馆三期基坑支护工程中进行搅拌复合桩施工



抱压式夹桩压桩装置三维图


 
预制楔形桩芯



23m顶压式复合桩机进行楔形桩芯压桩试桩
 
  2.4后配套施工记录仪表,采用主从双机通信的方式,实现前后台同步显示,并具有数据保存和打印功能,最大测量重量为3000kg,最大测量深度为30米。可实现对喷粉施工日期、桩号、深度、每米喷粉量及重量的监测、记录。
 
  经过软件重新设计,用液晶屏可以直观显示当前总重量和深度,顺利完成加大仪表重量和深度测量量程,分别为9000kg和30m。重量显示波动较大(±5kg范围变化),达目标值。
 
  记录仪表图
 
  2.5采用特制钻头,根据不同地质条件、不同施工工艺、不同成桩直径,钻头叶片的刀头采用不同形式的合金刀头,提高了钻进能力。
 
  特制的钻头是在钻头尖和叶片上根据不同的地质条件焊接不同的合金刀头,不仅可以施工普通软土地基,在粗砂土层等其它土层中也能顺利施工。
 
  
一般地基普通型钻头              带合金铲齿的喷粉型钻头


粗砂土层施工用钻头                合金头扩孔用钻头

扩孔钻头及扩孔桩示意图





设备施工劲芯复合桩的成桩效果图
 
  2.6PDF28型超高塔架抱压式大直径复合桩机塔架四根主受力矩形型材采用力学性能好的材料制作,减轻了重量且第一节塔架采用宝塔形桁架结构侧向稳定性好,塔架撑杆也采取了主副支撑杆的形式,整机稳定性大大增强。
 
                      宝塔形桁架                  主副支撑杆
 
                    常规SMW工法三轴搅拌桩机        顶压式SMW工法钻机


                         系列大直径复合桩机在珠三角和江汉平原地区施工
 
  三、系列新SMW工法型钻机创造的社会效益和经济效益
 
  以广东为例,2009年以后每年城市新建筑1.2亿平米以上,其中需基坑支护的工地约4000个以上,如能有50%采用SMW支护,则可节省钢材达100万吨以上,相当于少燃烧标准煤125万吨,减少碳排放310万吨。可见通过新技术的推广,使材料循环使用,节能减排,减少地下垃圾,并有助于地下空间的可持续发展。
 
  同类技术对比(大直径复合桩机施工SMW工法桩与其他钻机工法对比)
 
  3.1两层地下室:(以东莞厚街某项目为例)
 
  3.1.1方案对比:
 
  A:钻孔桩+止水桩+支撑
 


 
  B:SMW止水墙+支撑
 

 
  3.1.2综合比较
 
  
 
  3.2.一层地下室;(以万江某项目为例)
 
  3.2.1方案对比:
 
  A:止水墙+微型桩+土钉墙
 

 
  B:SMW墙+锚索
 
  3.2.2综合比较:
 
  工程实例(成桩效果图)
 
系列大直径复合桩机在湖北潜江工地施工SMW工法桩的成桩效果图


系列大直径复合桩机在广东中堂工地施工SMW工法桩的成桩效果图
 
  系列大直径复合搅拌桩机是将动力设置在下方,在特殊地层搅拌桩施工时采用了一种干湿喷相结合的施工工艺,降低了工作能耗,增强了适应各种复杂的施工环境的能力,另外该设备还自带一套抱桩和压桩施工机构,是一种高效的一机多用型复合桩施工设备。
 
  根据对上述施工情况的对比,采用大直径复合搅拌桩机进行SMW工法型钢水泥土搅拌墙施工方案较国内其它设备采取的方案具有明显的优势,在珠三角和江汉平原等地区得到广泛应用。
 
  系列大直径复合搅拌桩机还可以在搅拌桩中心插入预制管桩、方桩、楔形桩等,形成骨芯复合桩,作为高层建筑的桩基础,填补了水泥土搅拌桩在高层建筑桩基础上的应用空白。
 
  参考文献:
 
  [1]刘松玉《粉喷桩复合地基理论与工程应用》中国建筑工业出版社2006
 
  [2]吴志强《建筑施工机械》北京大学出版社2011.10
 
  [3]邓明权陶格兰主编现代桩工机械》人民交通出版社2004.5
 
  [4]桩基工程手册编写委员会编《桩基工程手册》中国建筑工业出版社1995.9
 
  作者简介:朱雪峰197807男硕士主要专业方向:工程机械工作单位:中铁科工集团轨道交通装备有限公司职称:高级工程师通信地址:武汉市江夏区庙山幸福工业园中铁科工集团轨道交通装备有限公司技术开发部职务:常务副部长邮编:430223手机号码:13986167678E-mail:[email protected]

  • 点赞(0
  • 反对(0
  • 举报(0
  • 收藏(0
  • 分享(13
评论(0)

登录后发表评论~