旋挖钻机动力头保养措施

2015-07-29 305 0
核心提示:  旋挖钻机是一种适合基础工程中成孔作业的施工机械。主要适于砂土、粘性土、粉质土等土层施工,在灌注桩、连续墙、基础加固等

   旋挖钻机是一种适合基础工程中成孔作业的施工机械。主要适于砂土、粘性土、粉质土等土层施工,在灌注桩、连续墙、基础加固等多种地基基础施工中得到广泛应用。

 
  今天武汉金泰机械就动力头保养与各位一起分享经验,首先说一下更换旋挖钻机动力头润滑油方式方法,再说检查和更换动力头花键齿轮油步骤,希望能给一直支持关注武汉金泰机械的朋友们带来一些帮助。
 
  
 
  一、更换旋挖钻机动力头润滑油
 
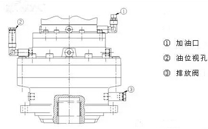
  1.卸下位于动力头驱动装置下面的检视盖。
 
  2.从上部机架上的固定器上卸下排油管,使软管端朝向容器。
 
  3.使用带有套管加长节的万向节来拧松排放阀,将油排放到适当的容器内。
 
  4.拧紧排放阀。将排油管挂在固定器上,确保软管端朝上。
 
  5.更换旋挖钻机动力头润滑油应取出油尺。
 
  6.通过油尺管加注定量的油。
 
  7.保持油面在油尺顶端和油尺标记之间。
 
  
 
  二、检查和更换动力头花键齿轮油
 
  1.要经常通过齿轮箱视孔盖的透明玻璃检查齿轮箱体内润滑油的高度,保证油面高度不得低于视孔玻璃垂直高度的三分之二。(齿轮箱体内的轴承是通过甩油润滑的,如果油面太低,轴承润滑不良,会降低设备的使用寿命。)
 
  2.更换齿轮油时,先将动力头齿轮油排放螺塞转到低部便于操作和排放油液的位置。
 
  3.卸下排放螺塞和油面塞,让动力头齿轮油排放到一个适当的容器内,排放过程中可适当缓慢转动动力头齿轮,以便于放油和排净污染物,但此时应注意安全,齿轮转动时相关人员应远离现场。
 
  4.检查螺塞及密封件,看是否完好,如果有明显的磨损或损坏,则应更换新的配件。
 
  5.待油液排放完毕之后,装上螺塞。
 
  6.拧开动力头上部接蓄能器的液压胶管接头,注意保护接头的清洁度,通过此接头孔向齿轮箱内加注润滑油(220号重负荷工业齿轮油),一边通过视孔玻璃观察油面高度,加到高于玻璃高度的三分之二,但是也不能加满,如果加满会造成动力头密封泄露,使液压油或水进入齿轮箱,这样可能会污染齿轮箱。
 
  7.上述步骤完毕后,拧紧步骤5卸下的胶管接头,装上油面塞。
 
  8.启动发动机并让动力头齿轮运转几圈。
 
  9.停止发动机,检查油面高度是否高于视孔玻璃高度的三分之二。
 

  • 点赞(0
  • 反对(0
  • 举报(0
  • 收藏(0
  • 分享(12
评论(0)

登录后发表评论~