地铁隧道盾构到达的施工工艺

2015-07-17 253 0
核心提示:  现在许多大城市都在紧锣密鼓地修建地铁。在城市的高楼大厦底下开挖地铁隧道,涉及到精确控制隧道的深度、走向和位置,上述参

   现在许多大城市都在紧锣密鼓地修建地铁。在城市的高楼大厦底下开挖地铁隧道,涉及到精确控制隧道的深度、走向和位置,上述参数在隧道延伸的过程需要不断调整,直至最终与地铁站点准确对接。地下施工缺少参照物定位,一旦有了差错返工更是困难。下面小编为你详细解析地铁隧道盾构到达的施工工艺。

 
  盾构到达施工流程
 
  盾构机到达施工是指从盾构机到达下一站(调头井)之前50m到盾构机贯通区间隧道进入车站被推上盾构接收基座的整个施工过程。其工作内容包括:盾构机定位及接收洞门位置复核测量、地层加固、洞门处理、安装洞门圈密封设备、安装接收基座等,到达施工流程盾构到达施工流程图如图图1所示。
 
  盾构到达的准备工作
 
  1、盾构机定位及接收洞门位置复核测量
 
  在盾构推进至盾构到达范围时,对盾构机的位置进行准确的测量,明确成洞隧道中心轴线与隧道设计中心轴线的关系,同时应对接收洞门位置进行复核测量,确定盾构机的贯通姿态及掘进纠偏计划。在考虑盾构机的贯通姿态时注意两点:一是盾构机贯通时的中心轴线与隧道设计轴线的偏差,二是接收洞门位置的偏差。综合这些因素在隧道设计中心轴线的基础上进行适当调整。纠偏要逐步完成,每一环纠偏量不能过大。
  图1盾构到达施工流程图
 
  2、进洞段的土体加固
 
  到达前一个月进行端头加固,并检查加固效果满足盾构机到站掘进要求。
 
  3、盾构到站设备和材料
 
  盾构到站设备材料有一组带液压站的千斤顶,盾构机接收托架、和12mm钢板。
 
  盾构到达施工
 
  1、根据盾构机的贯通姿态及掘进纠偏计划进行推进,纠偏要逐步完成,每一环纠偏量不能过大。
 
  
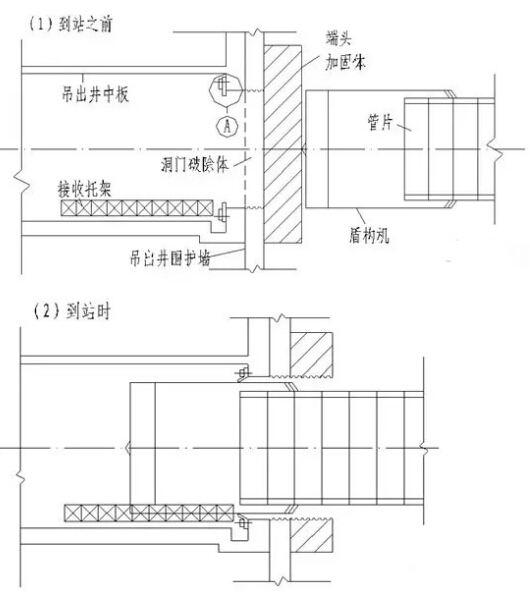
  图2盾构机到站示意图
 
  2、在盾构机距离端头墙50米时,选择合理的掘进参数,逐渐放慢掘进速度,控制在20mm/min以下,推力逐渐降低,缓慢均匀地切削洞口土体,以确保到达端墙的稳定和防止地层坍塌。
 
  3、盾构进入到达段后,加强地表沉降监测,及时反馈信息以指导盾构机掘进。
 
  4、盾构机刀盘距离贯通里程小于10m时,在掘进过程中,专人负责观测出洞洞口的变化情况,始终保持与盾构机司机联系,及时调整掘进参数。
 
  5、在拼装的管片进入加固范围后,浆液改为快硬性浆液,提前在加固范围内将泥水堵住在加固区外。
 
  6、当管片最后一环管片拼装完成后,通过管片的二次注浆孔,注入双液浆进行封堵。注浆的过程中要密切关注洞门的情况,一旦发现有漏浆的现象立即停止注浆并进行处理。


  7、当盾构前体盾壳被推出洞门时通过压板卡环上的钢丝绳调整折叶压板使其尽量压紧帘布橡胶板,以防止洞门泥土及浆液漏出。在管片拖出盾尾时再次拉紧钢丝绳,使压板能压紧橡胶帘布,让帘布一直发挥密封作用。其示意图3如下:
 
  
 
  图3密封橡胶帘布示意图
 
  8、由于盾构到站时推力较小,致洞门附近的管片环与环之间连接不够紧密,因此作好后20环管片的螺栓紧固和复紧工作。并用槽钢沿隧道纵向拉紧后20环管片,使后20环管片连成整体,防止管片松弛而影响密封防水效果。
 
  盾构到达施工注意事项
 
  1、盾构到达前检查端头土体加固质量,确保加固质量满足设计要求。
 
  2、到达前,在洞口内侧准备好砂袋、水泵、水管、方木、风炮等应急物资和工具。
 
  3、准备洞内、洞外的通讯联络工具和洞内的照明设备。
 
  4、增加地表沉降监测的频次,并及时反馈监测结果指导施工。
 
  5、橡胶帘布内侧涂抹油脂,避免刀盘挂破帘布而影响密封效果。
 
  6、在盾构机刀盘距洞门掌子面0.5m时应尽量出空土仓中的碴土,减小对洞门及端墙的挤压以保证凿除洞门混凝土施工的安全。
 
  7、在盾构贯通后安装的几环管片,一定要保证注浆饱满密实,并且一定要及时拉紧,防止引起管片下沉、错台和漏水。

  • 点赞(0
  • 反对(0
  • 举报(0
  • 收藏(0
  • 分享(10
评论(0)

登录后发表评论~