邻近地铁的建筑深基坑的设计与施工
2015-05-20
263
0
核心提示: 摘 要:城市地铁的出现和迅猛发展,给中心城区深基坑工程施工带来了一定的影响,如何在地铁保护区域迅速、顺利完成超深地下
摘 要:城市地铁的出现和迅猛发展,给中心城区深基坑工程施工带来了一定的影响,如何在地铁保护区域迅速、顺利完成超深地下工程的建造值得广泛思考和研究。结合工程实例,研究了城市地铁边多工况条件下建筑深基坑设计施工关键技术,通过分区域支护体系优化、先深后浅分段开挖的基坑施工部署创新、系统有效的基坑全方位监测,不仅确保了地铁边深基坑工程的高度安全性,而且实现了地铁保护区域复杂交通环境下深基坑工程的迅速施工,为特殊条件下的工程建造、城市形象建设充实了理论基础。
关键词:邻近地铁;基坑工程;监测;施工优化;工艺创新
1研究背景
随着社会不断发展,城市公交及出租车已不能满足人们日常快速出行的需求,城市开始发展轨道交通即地铁。然而在进行地铁工程施工时,往往会伴随着地铁沿线的建设与开发,势必存在深基坑工程邻近地铁隧道的支护设计与施工难题。众所周知,深基坑施工会造成建筑物地面土层松动,致使建筑物发生侧移或者沉降。因此,在地铁保护区域范围内,我们需要对在建深基坑工程施工技术进行深入研究与分析,总结一套毗邻地铁复杂多变条件下的基坑设计及施工技术。
中南路建设厅及配套用房土建工程位于武汉市轨道交通2号线中南路车站旁,包含主楼、综合楼及纯地下室部分,周边建筑物较多、环境复杂。工程占地面积约7000m2,地下3层,基坑最深达20m,距离地铁边缘仅15m(图1),基坑施工期间的安全及对地铁工程的影响是该工程基坑支护设计与施工的技术难点。
该工程场地极为狭窄,基坑边环境复杂。场地西侧紧邻中南路地铁站,北侧紧邻发展大厦及建设厅15#住宅楼;东侧与建研院相隔一条宽7m沥青道路;东南侧紧邻建设厅2#住宅楼;南侧与世纪大厦相距13m左右。基于复杂建筑环境,基坑设计优化、施工交通组织、安全监测等较为复杂。经过深入分析研究,该基坑支护设计采用高压旋喷桩止水帷幕+钢筋混凝土灌注桩+3道钢筋混凝土内支撑的支护方式,明挖顺作施工工艺。考虑到对地铁工程的影响,支护施工部署采取“先浅后深、分段施工、优先毗邻段”的原则,先行施工距离地铁最近且基坑较浅的纯地下室区域基坑支护及地下室结构,待该区域地下室结构形成后,利用该部分结构对邻近地铁土体的支护作用,进行主楼及综合楼区域的深基坑工程施工,为工程施工安全性提供了保障,并节约了施工工期。

图1 工程周边环境示意
2邻近城市地铁建筑深基坑设计
2.1基坑支护设计概况
基于复杂多变的周边环境,结合分区设计与施工的原则,本工程基坑分3个区分别支护,即Ⅰ区、Ⅱ区及Ⅲ区(图2)。其中,Ⅰ区与Ⅱ区之间、Ⅰ区与Ⅲ区之间均采用隔离桩分隔。

图2 基坑分区示意
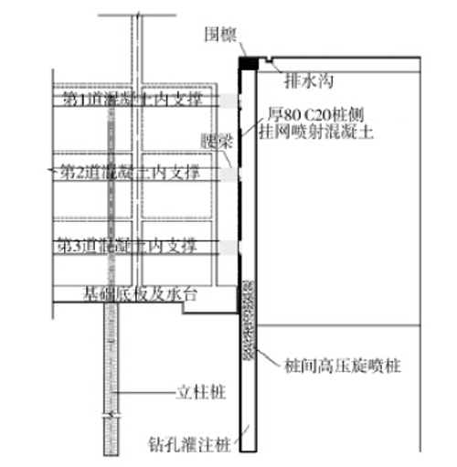
因地制宜,根据开挖深度合理选择支护形式,保障安全的同时,避免支护强度浪费。由于Ⅰ区、Ⅲ区开挖深度较大,选择高压旋喷桩止水帷幕+钢筋混凝土灌注桩+3道钢筋混凝土内支撑的支护方式(图3);Ⅱ区开挖深度较小,采用钢筋混凝土灌注桩+1道钢筋混凝土内支撑的支护方式。

图3 Ⅱ区、Ⅲ区基坑支护剖面
2.2支护桩设计
结合上述支护方案,经计算确定支护桩参数如下:Ⅰ区支护桩采用φ1200mm@1400mm/1500mm钻孔灌注桩,桩长为26.3~31.3m;Ⅱ区支护桩采用φ1000mm@1500mm钻孔灌注桩,桩长为9.3~17.3m。Ⅲ区东、南、北侧支护桩采用φ1200mm@1400mm钻孔灌注桩,桩长为29.3m(图4);Ⅰ区与Ⅲ区之间隔离桩为φ1000mm@1300mm,桩长为26.3m。

图4 Ⅲ区支护桩平面
2.3止水帷幕设计
结合本工程地勘情况,中南路区域地下水水位较高,需采取严密的止水方案,以确保基坑安全。为此,Ⅰ区、Ⅱ区基坑止水帷幕采用φ800mm@650mm高压旋喷桩,沿Ⅰ区北侧、东侧至东南角布置。高压旋喷桩长度为6m,即基坑底上下各3m设置。
如图5所示,Ⅲ区基坑止水帷幕AB、BD及EE’段为φ800mm@650mm高压旋喷桩,DE段高压旋喷桩位于支护桩间。高压旋喷桩长为6m,即基坑底上下各3m设置。
图5 支护桩及止水帷幕设计布置
2.4支撑设计
依据基坑深度及周边情况设置内支撑数量及位置,其中Ⅰ区设置3道钢筋混凝土支撑,3道支撑中心标高依次为-1.5m、-7.5m、-13.5m,Ⅱ区设置1道混凝土支撑,中心标高-1.5m,Ⅲ区设置3道钢筋混凝土支撑,3道支撑底标高依次为-1.80m、-7.40m、-13.00m。支撑具体布置如图6~图8所示。

图6 Ⅰ区混凝土内支撑布置示意

图7 Ⅱ区混凝土内支撑布置示意

图8 Ⅲ区混凝土内支撑布置示意
2.5立柱桩设计
综合部署,合理设置立柱桩,保证承载力。在Ⅰ区及Ⅱ区内支撑体系中设置33根立柱桩,立柱桩在基础底板底以上为角钢格构柱,基础底板底以下为钻孔灌注桩。角钢格构柱截面尺寸为460mm×460mm,角钢规格160mm×14mm。立柱桩底部为φ1000mm~1200mm钻孔灌注桩,桩端采用后压浆工艺,每根桩端注浆量不小于1.5t,混凝土强度等级C30。Ⅲ区内支撑体系中设置17根立柱桩,立柱桩在基础底板底以上为角钢格构柱,基础底板底以下为钻孔灌注桩。角钢格构柱截面尺寸为460mm×460mm,角钢规格160mm×14mm。立柱桩底部为φ1200mm的钻孔灌注桩,桩端采用后压浆工艺,每根桩端注浆量不小于1.5t,混凝土强度等级C30。
3邻近城市地铁建筑深基坑施工部署创新
结合工程场地狭窄的特点,经研究分析与对比,选取了“先浅后深、分段施工、优先毗邻段”的部署原则。即先行施工毗邻地铁的纯地下室区域的基坑支护、土方开挖及地下室结构施工,由于该区域基坑深度及面积均相对较小,可组织充足的劳动力尽快完成该区域的地下室结构施工,并利用该部分地下室结构形成对地铁保护区域土体的反压,保证基坑安全(图9、图10)。

图9 基坑施工部署组织示意

图10 基坑施工流程
毗邻段纯地下室结构完工后,随即开始次深区域的基坑支护、土方开挖及地下室结构施工,同样待该区域结构施工基本完成后,展开进行最深区域(主楼)的基坑支护、土方开挖及地下室结构施工。因此,通过分级分区域的施工部署,既保证了工程基坑施工的安全,避免了对地铁工程的影响,同时也为该工程临街区域的形象进度赢得了时间,保证了工程进度及城市形象建设。
为确保基坑安全,Ⅱ区结构施工时需分段间隔施工,分段破除车站主体的地下连续墙。根据通道结构特点,将Ⅱ区分为Ⅱ-1区、Ⅱ-2区、Ⅱ-3区。根据土方开挖顺序及结构特点,底板及顶板结构的施工流水为:Ⅱ-1区、Ⅱ-3区、Ⅱ-2区。底板施工时,同时破除底板底至底板以上1m的地下连续墙;竖向结构及顶板施工时,先破除Ⅱ-1区、Ⅱ-3区的地下连续墙,再破除Ⅱ-2区的地下连续墙。顶板结构施工时,地下连续墙破除至顶板顶以上1m处,为施工留足施工面(图11)。

图11 平面分区
结合Ⅲ区基坑内支撑布置情况,将该区基坑分为2个区,即为Ⅲ-A区、Ⅲ-B区(图12)。

图12 综合楼基坑平面分区
桩基及土方开挖施工顺序均为先施工Ⅲ-A区,再施工Ⅲ-B区。在进行Ⅲ-B区桩基施工时就提前插入Ⅲ-A区第1层土方开挖及第1道混凝土内支撑的施工。经过现场实施,在该基坑施工部署创新原则下,80d完成了紧邻地铁Ⅱ区基坑工程施工,将地铁保护区域的风险周期有效压缩在3个月以内。随即插入的Ⅰ区、Ⅲ区相继在110d及150d内完成了基坑及地下结构的施工,有效实现了基坑全面部署下的流水作业,赢得了工程总体工期,效益显著。
4邻近城市地铁建筑深基坑安全监测
为确保基坑施工期间基坑本身及周边建筑物的安全后,拆除第2道支撑,施工地下2层楼板及传力带。
施工地下1层楼板及传力带,待地下1层楼板及传力带达到设计强度后,拆除第1道支撑。施工地下室顶板结构,土方回填。
基坑监测根据工程现场实际情况,基坑周围不存在地下管网,故本工程基坑工程施工时,对于基坑监测的主要内容包括:测斜、水位和轴力。基坑监测从基坑抽水开始,监测频率为1次/d,以后的监测频率依照实际情况而定。监测控制值为:
1)围护结构侧土体连续3d水平位移增加值达到1mm/d;
2)第1道支撑轴力:11000kN;
3)第2道支撑轴力:13000kN;
4)坑外水位一天变化达500mm。
挖土至坑底和支撑拆除期间应增加监测次数。如遇位移、沉降及其变化速率较大时,则应增加监测频次。
5结语
通过落实以上合理的施工部署及施工技术措施,成功解决了本工程围护结构上遗留的毛病,并完成了深基坑施工;保证了工程质量与进度要求,为后期地下室结构施工打下了结实的基础,为相关工程积累了经验。
作者:王洪涛 周鹏华
转自:《建筑施工》