42.45米深基坑支护创新技术
2015-04-27
270
0
核心提示: 长沙国金中心项目是个将集大型精品商场、高端写字楼及国际百斤五星级酒店等设施于一体的超高层大型城市综合体。该项目总建
长沙国金中心项目是个将集大型精品商场、高端写字楼及国际百斤五星级酒店等设施于一体的超高层大型城市综合体。该项目总建筑面积约100万平方米,其中主楼建筑高达452米,共有93层,设置6道避难层,是在建的湖南省第一高楼;副楼高315米,共有65层,设置4道避难层。项目计划于2016年全部建成。
一、基坑工程概况及项目难点
长沙国金中心基坑最大开挖深度为42.45m(T1塔楼升降机坑位置),非塔楼区深度34.25m,科技查新报告表明,该基坑工程面积约75000平方米,基坑深度深度为全国第二、湖南第一,复杂程度为全国之最!
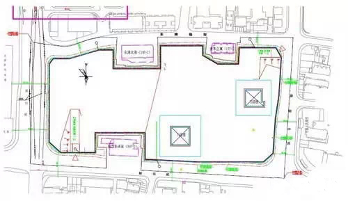
基坑西侧壁黄兴路路面下规划建设地铁1号线,地铁东界与基坑西侧壁距离约6-9m,地铁盾构作业深度范围约12.40-20.00m,该范围内严禁锚索穿入。东侧壁紧临蔡锷路;北侧壁东侧既有1栋名为“青年公寓”的高层建筑(17F+2),北侧壁西侧既有1栋名为“东港名巷”的高层建筑(24F+2);南侧壁西侧既有1栋名为“城市生活家”的高层建筑(34F+2)。
该3栋既有高层建筑物以“凸”字形嵌入基坑,其基础型式为人工挖孔桩,持力层为中风化泥质粉砂岩,桩端距离非塔楼区坑底约11m。考虑地下水〔含地表水〕、变形严格控制、回避锚杆〔索〕对既有高层建筑物地基土和基础破坏、基坑阴阳角岩土体变形破坏、基坑侧壁岩土体蠕变变形、整体内支撑温差变形破坏及偶然荷载作用等不确定性以及可逆转性的各种不利因素,如果按照传统由上而下挖地基的方式,必将对这些既有建筑的地基有所损害。为此,设计院先后策划了多套支护方案,最终首次提出以“深大基坑中心岛顺逆工法”分期施工,有效解决了这一难题。
二、土层及水文地质条件
场地埋藏的地层由人工填土层、第四系沼泽相沉积层、第四系冲积层、第四系残积层及白垩系泥质粉砂岩组成:
人工填土(Qml):褐灰、褐黄等色,主要由砼块、碎砖、瓦片等建筑垃圾组成,混少量粘性土和砂类土,属杂填土,未完成自重固结。
第四系沼泽相沉积(Qh)淤泥质粉质粘土:褐灰色,很湿~饱和、软塑,层厚0.50~9.20m。
第四系冲积层(Qal):
粉质粘土:褐黄色,稍湿、硬塑,层厚1.00~10.00m。
粉质粘土:褐红、灰白等色,下部含5~10%粉细砂,稍湿、上部坚硬,下部硬塑,层厚2.00~10.90m。
粉细砂:褐黄色,饱和、稍密,层厚0.60~5.60m。
粉质粘土:褐灰色,很湿、软塑,层厚2.20m。
中粗砂:褐黄色,石英质,不均匀含圆砾5~20%,含卵石5~10%,卵石粒径大者达10cm,混少量粘性土,饱和、中密,层厚0.80~17.00m。
圆砾:褐黄色,石英质,一般粒径0.3~1.5cm,不均匀含卵石5~20%,卵石粒径大者12cm,混少量粘性土,饱和、中密,层厚1.00~5.90m。
第四系残积(Qel)粉质粘土:褐红色,由泥质粉砂岩风化而成,层厚0.40~5.70m。
强风化泥质粉砂岩:褐红色,岩块手能折断,冲击钻进困难,岩芯多呈碎块状,少量短柱状,属极软岩,岩体破碎,岩体基本质量等级为V级,层厚0.40~8.00m。
中风化泥质粉砂岩:褐红色,遇水易软化、曝晒失水易干裂,岩块手折不断,岩芯多呈长柱状,少量短柱状、碎块状。属极软岩,岩体较完整,岩体基本质量等级为V级。
根据勘察报告,场地地下水分别为赋存于人工填及第四系粘性土层中的上层滞水,以及赋存于粉细砂、中粗砂、圆砾中的潜水。
该基坑侧壁支护段所涉及的土层主要人工填土、淤泥质粉质粘土、粉质粘土、粉细砂、中粗砂、圆砾、强风化泥质粉砂岩、中风化泥质粉砂岩,其中基坑东南角位置中粗砂层厚度约17m。
三、基坑工程支护措施
因该基坑坡顶范围支护空间仅有3.0m,其中包含支护桩及止水帷幕占地空间,垂直开挖深度最小也有34.25m,针对该基坑工程的岩土工程条件、水文地质资料和周边环境条件条件,参照成功的设计及施工经验,在技术上、经济上对多种方案进行了论证及对比,最终确定该基坑工程采用支护方案如下:
1、对基坑四周采用双排三重管高压旋喷桩止水帷幕对基坑进行止水;
2、基坑支护采用“支护桩+锚索”支护方案,考虑成桩质量,桩型设计为人工挖孔桩。
3、基坑南、北侧壁既有高层建筑物地段,采用分期支护分期施工的方式,采用“内支撑”支护方式,避免锚索施工对周边建筑物基础的影响,并减少土方开挖土体变形对周边建、构筑物的影响。

基坑平面图
西侧(左侧)两条地铁盾构线距离基坑边线6~9.0m,标高范围在-12.6m至20.0m范围内严禁锚杆穿入,为控制基坑变形,该侧采用“矩形桩+预应力锚索”支护方式。
基坑施工便道
四、监测项目
根据《建筑基坑支护技术规程》JGJ120-99,《建筑基坑工程监测技术规范》(GB50497-2009),按照一级基坑支护监测要求,监测内容包括:坡顶水平位移和垂直位移监测及深层水平位移观测(测斜);周边建、构筑物竖向位移、倾斜、水平位移监测;锚索内力及预应力损失值监测;地下动态水位监测;周边建筑、地表裂缝;周边管线变形监测;坑底隆起(回弹)监测;支撑轴力监测;立柱、腰梁变形监测。
五、结语
目前,该基坑工程部分范围已经开挖至底标高,基坑止水效果良好,漏水点非常少且水量很小,根据监控量测结果显示,基坑周边土体变形很小,各项指标均在正常范围之内。还有尚未完工部分还在继续施工,将通过动态设计、动态施工来控制基坑的施工质量及安全质量。