预制工字形桩在深厚杂填土等复杂地层条件 深基坑工程应用

2015-07-29 610 0
核心提示:介绍了预制工字形桩结合高压旋喷止水帷幕和钢筋混凝土支撑支护结构在杭州万科钱江新城项目地下室基坑工程中的应用实践。根据基坑实际开挖施工情况及基坑支护结构坑外土体位移变形的监测表明,该支护结构形式满足基坑稳定安全要求,可有效控制坑边土体变位,确保止水帷幕安全有效,确保了基坑安全、周边建(构)筑物的安全及地下室顺利施工。为该支护结构形式在同类基坑工程中的推广和应用积累了宝贵经验。

樊京周1,龚新晖2,杨保健3,严谨4,李显恒5,严平6
 
(1.4.杭州南联地基基础工程有限公司,310013,浙江杭州;2.5.杭州南联土木工程科技有限公司,310013,浙江杭州;3.杭州市电力设计院有限公司,310004,浙江杭州;6.浙江大学建筑工程学院,310058,浙江杭州)
 
  【摘要】介绍了预制工字形桩结合高压旋喷止水帷幕和钢筋混凝土支撑支护结构在杭州万科钱江新城项目地下室基坑工程中的应用实践。根据基坑实际开挖施工情况及基坑支护结构坑外土体位移变形的监测表明,该支护结构形式满足基坑稳定安全要求,可有效控制坑边土体变位,确保止水帷幕安全有效,确保了基坑安全、周边建(构)筑物的安全及地下室顺利施工。为该支护结构形式在同类基坑工程中的推广和应用积累了宝贵经验。
 
  【关键词】预制工字形桩;高压旋喷;钢筋混凝土支撑;基坑支护
 
  一、工程概况及特点
 
  1、工程概况
 
  万科钱江新城(杭政储出(2013)40号地块)项目工程位于杭州市江干区三堡单元。具体场地北靠规划花园路(目前为空地),东临为规划升华路(目前为空地),南临规划闻涛路(目前为空地);西侧为规划运河东路(目前为空地)。本工程由4幢(1#、2#、3#、4#)36层高层住宅、2幢(5#、6#)11层小高层住宅、4幢(7#、8#、9#、10#)四层商业用房及地下车库组成,其中7#、8#、9#楼为第一示范区,不设地下室,其余设二层地下室,基坑最大挖深约10.7m,拟建建筑物采用灌注桩基础型式。
 
  图1万科钱江新城项目基坑工程平面图
 
  2、工程地质条件
 
  基坑开挖影响范围地层情况如下:
 
  ①-1杂填土:灰褐色、灰黄色、杂色,以建筑垃圾、混凝土块及粉土为主,含碎石及植物根茎,夹有少量有机质,局部为原建筑物基础,层厚1.20~7.70m。①-2淤填土:灰黑色,流塑,以塘泥为主,含较多腐植质及少量碎石、砖瓦块,及大量有机物,一般存在于原河道及水塘底部,层厚0.90~5.00m。①-3素填土:灰褐色、灰色,以粉土及粘性土为主,局部含淤填土、碎石及植物根茎,夹有少量有机质,层厚0.70~5.00m。①-3夹碎石:青灰色,粒径在30cm以上,一般存在于素填土底部,为原建筑物基础碎石垫层,层厚0.50~2.00m。③砂质粉土:灰色、青灰色,很湿,稍密,含云母碎片,局部混粘质粉土,层顶高程为3.47~-0.33m,层厚6.20~10.70m。⑤-1砂质粉土混粉砂:灰色、青灰色,湿,中密,局部密实,含云母片,颗粒较均匀,局部夹大量粉砂,层顶高程为-4.92~-8.44m,层厚2.90~7.10m。土层主要土性指标及基坑开挖支护设计参数见表1。
 
  表1基坑开挖影响范围内土层物理力学参数表
 
  3、场地水文地质条件
 
  本场地上层地下水性质属潜水,下层地下水属承压水。承压水对地下室施工基本无影响。上层潜水埋藏较浅,水量丰富。主要赋存于场地内的填土、粉土中。地下水埋深1.01~3.70米,该层潜水主要受大气降水、周边河道、地表水补给等影响,地下水位年变幅为1.0~2.0米之间。
 
  4、基坑工程特点
 
  (1)本基坑工程开挖面积较大,基坑总体上呈规则四边形,基坑围护边线也相对平直,基坑围护边线长约500m。
 
  (2)基坑工程设地下室二层,基坑开挖深度约9.9~10.7m,坑中坑深度约2.50m。
 
  (3)基坑开挖深度范围内主要涉及①-1杂填土,①-2淤填土,①-3素填土,①-3素填土夹碎石,③砂质粉土,⑤-1砂质粉土混粉砂等。
 
  (4)万科钱江新城杭政储出(2013)40号地块项目工程位于杭州市江干区三堡单元。本基坑工程周边环境较好,除基坑西侧基坑开挖时第一示范区的四层样板房需要保护外,没有其他需要保护的建(构)筑物及道路管线。
 
  (5)根据浙江省标准《建筑基坑工程技术规程》的规定和周围环境的特点,本基坑工程属于一级基坑工程,相应基坑工程安全等级的重要性系数γ0=1.1。
 
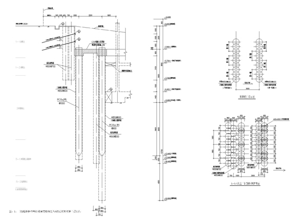
  二、基坑围护设计(附图2工程典型大样图)
 
  (1)基坑地下室采用三轴强力水泥搅拌桩按套一孔法施工结合高压旋喷桩形成止水帷幕,三轴搅拌桩植入预制钢筋混凝土工字形桩形成围护桩墙结合一道水平钢筋混凝土内支撑结构方案,出土口加强区段采用双排桩支护结构。;
 
  (2)基坑上部采用小放坡结合土钉墙进行支护;
 
  (3)基坑内外采用简易深井并结合排水沟、集水井明泵降排水方案,其中坑外为控制性降水。
 
  (4)坑中坑采用直接放坡进行开挖施工。
 
  图2万科钱江新城项目基坑工程典型大样图
 
  三、基坑围护施工
 
  1.总体施工顺序
 
  1.1基坑四周三轴搅拌桩轴线范围内地下障碍物清理。
 
  1.2基坑四周采用Φ850@600三轴强力水泥搅拌桩套一孔法搭接结合Φ800@500高压旋喷桩施工形成止水帷幕,同时插入工字形围护桩。
 
  1.3坑中坑可采用放坡开挖,施工快捷简单,效果可靠,投入较小,可确保底板基础的顺利施工。
 
  1.4基坑内、坑外设置深井降水井并结合坑内外排水沟、集水沟、集水井等明泵降排水方案。
 
  1.5基坑土方开挖总体上分三个阶段:第一阶段开挖至围护桩墙压顶梁底、第一道支撑梁底;第二阶段开挖至基础板底;第三阶段开挖至承台底及坑中坑底等。
 
  1.6基坑土方开挖应严格按分区块分层分段进行。
 
  1.7开挖至坑底后及时施工完成基础底板的浇筑,待底板混凝土及换撑带达设计强度80%以上后,可施工地下室外墙、楼板直至地面。
 
  2.主要施工技术措施
 
  2.1地下障碍物处理
 
  2.1.1地下障碍物探查地下障碍物处理之前先用地质钻机探查三轴水泥搅拌桩轴线范围的地下障碍物的埋藏深度等,探查孔的孔位间距5米,探查深度10-15米,钻孔全取芯,由专业人员进行编录。根据探查结果,地下障碍物的埋藏深度一般在6-7米,个别在10-12米。
 
  2.1.2地下障碍物清理用挖机清理地下障碍物,清障宽度5米左右,深度达到地下障碍物下的原状土,超过6米的障碍物用17米的长臂挖机请障。清理块石等障碍物,再用好土回填,深度超过6米采用泥浆护壁,防止孔壁坍塌。
 
  2.2水泥搅拌桩帷幕施工
 
  1、三轴强力水泥搅拌桩采用Φ850@600,采用三轴强力搅拌桩机按全断面套一孔法搭接施工形成止水帷幕。
 
  2、三轴强力水泥搅拌桩采用强度等级为42.5MPa普通硅酸盐水泥,实搅部分水泥掺量22%,空搅部分水泥掺量5%,水灰比1.5。
 
  3、三轴强力水泥搅拌桩,施工工艺为二次喷浆二次搅拌(具体为下沉喷浆、提升喷浆完成一幅施工),下沉、提升速度控制在1.0m/min以内。
 
  4、三轴强力水泥搅拌桩止水帷幕应从地面开始成桩,并保持均匀、持续;严禁在提升喷浆过程断浆,特殊情况造成断浆应重新成桩施工。
 
  2.3工字型围护桩
 
  1、本工程采用400800工字形钢筋混凝土围护桩,桩主筋采用预应力筋,预应力配筋采用予应力砼用钢棒(GB/T5223.3-2005),桩身混凝土等级为C50。
 
  2、桩身截面平整,桩长不小于设计长度,桩筋混凝土保护层厚度20mm,桩身弯曲率小于1/1000,桩身混凝土颜色均匀正常,无露筋、裂缝等缺陷。
 
  3、三轴强力水泥搅拌桩施工完成每幅后应及时植入工字形围护桩,滞后时间不得超过一个小时;采用改进型多功能三轴强力水泥搅拌桩机静压植入成桩,遇局部较大阻力静压力不够时可采用振动植入成桩。
 
  4、施工中严格控制桩平面位置和垂直度。桩偏离轴线位置不得大于100mm,桩间距误差不得大于100mm;桩顶标高误差不大于100mm,桩垂直向偏差不大于1%。
 
  5、工字形桩应整体嵌固于压顶梁内,浇筑压顶梁时,应先将桩表面浮土清理干净,桩身混凝土应保持完整,不得凿除,并每桩两边应增设三道箍筋。
 
  2.4高压旋喷桩
 
  1、止水帷幕高压旋喷桩Φ800@500,搭接300,复合土钉墙高压旋喷桩Φ800@700,搭接100,采用二重高压旋喷桩机隔序施工成桩,自桩顶设计标高以上0.5m处开始成桩,桩顶和桩底设计标高详见相关剖面大样图。
 
  2、二重管高压旋喷桩水泥掺量不小于30%,水泥浆液采用强度等级为42.5普通硅酸盐水泥,水灰比1.0,水泥浆液压力25MPa,空气压力0.7MPa,提升速度10cm/min,旋转速度10r/min。
 
  四、结语
 
  本文介绍了预制工字形桩在深厚杂填土等复杂地层条件深基坑工程应用通过基坑开挖后的基坑监测数据显示,基坑周边的沉降和位移都在规范允许的范围内,基坑开挖后西侧的四层第一示范区样板房,未出现墙体开裂等变形,达到了预期的目标。为同类基坑工程应用积累了宝贵经验。

  • 点赞(0
  • 反对(0
  • 举报(0
  • 收藏(0
  • 分享(14
评论(0)

登录后发表评论~