日前,法国总统马克龙成功访华,在此期间,中法双方达成多项重要合作。中国建研院与法国建筑领域内各相关机构、科研单位、企业等的合作交流由来已久。本世纪以来,双方在建筑设计、建筑技术、建筑认证等领域多次“牵手”合作,应用形成了一批具有影响力的成果项目,有力推动了中法建筑领域的技术进步与发展。
合作缘起
早在本世纪初期,
中国建研院就积极探索
与法国知名设计企业的合作。

△何广乾总工程师与法国建筑师交流合作项目
2009年,中国建研院与
法国NDA-EDDS设计公司的
著名建筑师邓乐路(Delarue)
正式组成“联合体”,
以龙凤呈祥之设计理念中标
安徽广电新中心设计项目。

△安徽广电新中心
该项目总建筑面积
37.3万平方米,
东区超高层办公主楼48层,
主楼结构高度230米,
总高301米,
是建国以来安徽省
体量最大、投资最多、
技术设备最先进的项目,
于2013年完工投入使用。
2019年,中国建研院与
法国VP建筑设计事务所
在法国巴黎签署战略合作协议。

△与法国VP建筑设计事务所交流
该事务所是欧洲十大
著名设计事务所之一,
也是法国最大的
建筑设计事务所。
双方表示,将在国际建筑市场、
特别是中国市场建立
更加紧密的友好合作关系,
积极寻求和创造合作机会,
实现优势互补、
资源共享、共同发展。

△签署战略合作协议
2020年,第三届进博会现场,
中国建研院与
法国VP建筑设计事务所
进行了现场签约。

△进博会现场签约
此次签约合作,
将在中国建研院的设计业务中
进一步引入国际先进设计理念,
丰富国际合作经验。
推进项目
基于前期合作基础,
中国建研院与
法国有关机构、企业,
持续推进具体项目建设。
2011年,中国建研院在
法国建筑科学技术中心(CSTB)
完成满足法国标准要求的
钢筋机械连接产品试验,
并成功应用于按法国标准设计
阿尔及利亚国家体育场项目。

△CSTB试验报告
2019年,中国建研院
承建的昆明市
第一人民医院甘美医院
中法联合实验室正式启用。

△中法双方团队留影
联合实验室研究团队
由巴黎大学、昆明学院、
昆明市第一人民医院甘美医院
共同组建,
以肿瘤病毒及艾滋病病毒的
临床诊疗为研究方向。

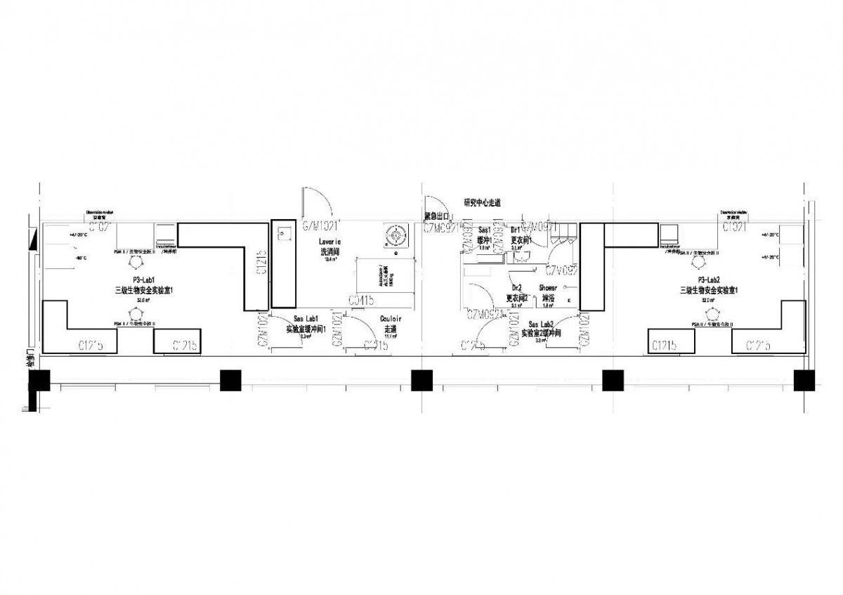
△联合实验室平面图
在联合实验室设计 及建设过程中,
中国建研院承建团队
多次跨洋进行研讨交流,
最终以国产材料设备为主,
辅以部分进口控制设备,
成功实现了既满足
外方专家提出的使用需求,
又符合中国国家规范的
实验室建设工作,
为中外合作建设符合中国国情的
高等级生物安全实验室
开创了先河、提供了经验。

△联合实验室内部设备
截至目前,中国建研院与
法国VP建筑设计事务所
联合设计的
海口国际免税城已经开业,
杭州大会展中心一期项目
4号、8号展厅钢结构主体
也正式结顶,
成功谱写中法合作项目新篇章。

△海口国际免税城

△杭州大会展中心
广泛交流
近年来,
中国建研院通过主持
《绿色建筑评价标准》以及
配套标准的编制工作,
形成了具有中国特色的
绿色建筑标准体系。
在此基础上,中国建研院与
法国机构强化交流,
通过开展2019版
《绿色建筑评价标准》与
法国高质量建筑环境体系(HQE)
的标准对比工作,
启动中法绿色建筑
“双认证”评价工作,
极大促进了我国绿色建筑
有关技术和标准在法国推广。

△开展的绿色建筑双认证工作
法国作为核电占比最高的国家,
是全球最大的核电技术出口国,
也是全球为数不多的
同时拥有高放、低中放、
极低放废物处置场
及地下实验室的国家,
在放射性废物处置方面
积累了大量实践经验。

△赴法人员与法国国家放射性废物管理机构(ANDRA)总部技术交流现场
为此,中国建研院多次派员
参加中法放射性废物处置
技术交流讨论会,
并赴法开展实地调研
及技术交流。

△2017年法国芒什处置场(CSM)低中放废物地表处置场坡顶合影
2019年,中国建研院派员
参加法国HQE-GBC联盟
举办的国际绿建大会边角论坛
及全体大会,
并与HQE相关技术人员就
既有建筑综合性能提升展开研讨。

△2019届国际绿建大会边角论坛合影
基于HQE标准交流基础,
2021年,中国建研院牵头主办
“HQE标准培训暨绿色建筑
双认证技术研讨会”,
中法团队互相汇报技术成果、
分享经验、充分交流。

△“HQE标准培训暨绿色建筑双认证技术研讨会”参会代表合影
同年, 法国大使馆
民事安全技术参赞莫兰先生
一行至中国建研院
就高层建筑防火、
防火材料的耐久性、
火灾风险评估、
灾后赔偿机制等方面
进行技术交流,交换诸多意见,
为中法消防安全、
建筑防火领域技术交流
创造了广阔的前景和机遇。

△中法建筑防火技术研讨会留影
此外,
中国建研院与法国建筑机构企业
在建筑标准、节能减排等方面
也有多次协作交流,
为中法建筑领域高质量发展
提供了新途径、增添了新动能。
从历史到未来,
我们衷心期待中法双方有更深入的合作!