攻坚克难,挑战新高度——暨上海广大南京东路179号地块与轨交14号线黄陂南路站TRD施工简讯​
2017-12-20
728
0
核心提示: TRD工法锯链式等厚度水泥土搅拌墙技术,是一种新型水泥土搅拌墙施工工艺,该工法将传统的垂直轴螺旋钻杆水平分层搅拌方式变革
TRD工法锯链式等厚度水泥土搅拌墙技术,是一种新型水泥土搅拌墙施工工艺,该工法将传统的垂直轴螺旋钻杆水平分层搅拌方式变革为水平轴锯链式切割箱沿墙体深度垂直整体搅拌方式。适应粘性土、砂土、砂砾及砾石层等地层,在N值超过30击以上的密实砂层、无侧限抗压强度不大于10MPa的软岩中也具有良好的适用性。可广泛应用于超深隔水帷幕、型钢水泥土搅拌墙、地墙槽壁加固等领域。
由上海广大承建的上海市南京东路179号街坊成片保护改建工程与上海轨道交通14号线黄陂南路站TRD工法槽壁加固项目正热火朝天的施工中。两个项目均处于城区繁华地段,充分说明TRD工法不仅适应深厚砂层、软岩等复杂地层,还适应周边环境复杂、保护要求高的中心城区等复杂环境。以下是项目简讯:
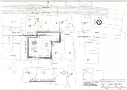
一、南京东路179号街坊成片保护改建工程
基地位于南京东路以南,四川中路以西,江西中路以东,九江路以北,总建筑面积约为59250m
2。本工程由保护保留建筑四组(美伦大楼、新康大楼、中央商场大楼、华侨大楼)共7栋楼、原新康大楼拆除部分与新建大楼合建而成的10层楼、1 个4层地下车库组成,处于地库边线内侧的新康大楼改造方案为仅保留南、北、西三个沿街外墙,拆除其余部分后与新建大楼合建为10层楼。

新康大楼保护保留外墙及钢桁架
基坑北侧南京东路上为已经运营中的地铁2号线,地铁边线距离美伦大楼和中央商场大楼最近处仅为2.0m左右;基坑西侧边线距离江西中路旁的管线最近距离仅约6.0m;基坑南侧边线距离九江路旁的管线最近距离仅约3.0m。
本工程基坑面积3073m
2,周长255m,开挖深度为22.9m,地下5层。基坑主体结构采用逆作法施工,不另设支撑体系。支护结构采用地下连续墙,厚度1200mm,深度52m,墙趾位于第⑧1层灰色粉质粘土层中。沿地下连续墙两侧采用TRD工法锯链式等厚度水泥土搅拌墙作为槽壁加固,厚度800mm,深度44m。
围护结构总平面图及周边环境示意图

地质剖面图
本项目主要特点:
1. 项目地处闹市区,四周为保护保留建筑且临近地铁2号线,周边环境保护要求极高;
2. 基坑主体结构采用逆作法施工,不另设支撑体系;
3. 受周边原有建筑物外墙面已施工钢桁架影响,施工作业面狭小;
4. 基坑外侧6个阴角转角部位均存在3m~5m的施工盲区,该部位需采取MJS工法进行加固;
5. 地墙外侧TRD槽壁加固兼作隔水帷幕的作用。
该公司具体负责本项目TRD槽壁加固施工,于2017年10月14日正式开始施工,截止目前已完成224延米,占总量43%,目前总体进展较为顺利。
TRD槽壁加固施工中
二、上海轨道交通14号线黄陂南路站
轨道交通14号线黄陂南路站位于金陵西(中)路下,重庆南路以东,横跨黄陂南路,为地下二层带单列位停车线侧式站台车站,与1号线黄陂南路站通道换乘,坑底深约17.09m。
黄陂南路站西端头井围护结构选用1000mm厚地下连续墙(工字钢接头),北侧墙长34m,墙趾位于第⑤3-1层粉质粘土夹粘质粉土层中;南侧墙长39m,墙趾位于第⑤3-2粘质粉土夹粉质粘土层。施工场地位于南北高架下方,高度受限,地墙外侧采用TRD工法作为隔水帷幕,厚度800mm,深度48m,地墙与TRD净距达1m。TRD水平延长虽然仅54m,但是在此特殊环境下施工,意义重大。
黄陂南路站TRD隔水帷幕平面示意图
本项目主要特点如下:
1. 施工场地位于南北高架下方,场地存在限高,且高架保护要求高;
2. 场地狭小,且地下管线错综复杂;
3. 文明施工要求高,现场采用双层H型钢焊接围成简易泥浆堆场;
4. 高架桥下施工,施工吊装及切割箱起拔难度及风险高。
本项目于2017年12月1日正式开工,目前已完成总量的79%,预计12月20日全部施工结束。