浅议基坑支护设计专家评审的乱象
2016-02-22
3312
0
核心提示: 摘要:深基坑支护设计专家评审作为政府及社会对基坑风险管理的重要组成部分,为项目设计方案的的安全与经济提供把关与建议,
摘要:深基坑支护设计专家评审作为政府及社会对基坑风险管理的重要组成部分,为项目设计方案的的安全与经济提供把关与建议,一定程度上提高了基坑支护设计行业的可靠发展,规范了管理流程,加强了过程监控,但是专家评审制度及方式仍存在较多问题需要完善。结合案例分析了深基坑设计评审专家的组成、评审方式及存在的部分问题,并提出了一些供参考的建议。
引言
由于深基坑工程是一项风险工程,且建设部[87]号文规定了深基坑及深开挖需要进行专家审查,以至于各地区政府部门对深基坑工程采取了一揽子的管理手段。其中包括,深基坑支护设计、施工方案、监测方案、降水方案、支撑拆除方案等一系列专家审查与评审。政府组织的专家评审是政府管理工作最核心的环节之一,在一定程度上起到了把关和风险管理的目的,但是,这些“专家”是由当地政府部门邀请的社会上的个人。专家们独立参与项目评审,不承担任何责任。
笔者主要从事基坑支护设计工作,举几个亲身经历的案例聊聊,以期共勉。因为基坑支护设计是小众设计,即单个项目设计费很少,设计周期短,因此,本人参与的项目就较多,曾参与过的项目分布在江苏省各地市、安徽与浙江部分城市、上海等地,接触过的专家很多,发现深基坑设计专家评审存在较多弊端,简要分析如下。
一、专家的组成分析
我国大、小地市都对基坑设计有评审和专家论证的管理规定,当然每个地方的操作与管理方式略有差异,大致是一样的,即所谓的专家审查。专家可以说是来自各行各业,有搞建筑设计的、结构设计的、道路桥梁的、地铁运营管理、地铁建设管理的、质检站、安监站、建工局、建设局、招标中心、规划设计的、主体结构施工的、桩基施工、土方开挖的、监理的、各大高校的教授、各大单位基建处的、工程检测、监测、甚至还有搞管线探测的,当然也有岩土勘察、岩土设计的等等,不甚枚举。

图1 苏北某市深基坑工程设计文件评审专家情况

图2 苏南某市边坡与深基坑工程设计评审专家情况
所谓的深基坑设计评审专家,大致分成可四种类型,①一无所知型的(专拿专家费的),例如地铁运营管理的、安监站的、管线探测的、建设局的、建工局的、招标中心的、质监站的等等;②一知半解型的(凑数的),例如土方开挖的、监理的、检测的、监测的、各种单位基建处的等等;③似懂非懂型的(关系户),例如高等院校纯搞教学的、搞建筑的、搞规划的、搞主体施工的、桩基施工的、纯搞岩土勘察的等等;④基本能懂型的,搞岩土工程设计的、搞结构设计同时也搞岩土设计的。由图1可知,本市从事岩土工程的占比仅为30%,而这里面多少人是从事岩土勘察的多少人从事岩土设计的,就不得而知了。但审图中心、建管局及质监站政府人员占比达34%;由图2可知,从事岩土勘察设计的只有3人,其余专家均属于 “外行”,更猛的是,公共资源交易中心的人员也凑数当基坑设计评审专家。
二、专家评审的组织
各地专家评审程序都不尽相同,以南京为例,基坑设计图纸出来后,要送省或市审图中心专家审查,只要审图中心审图通过,即可办理后续的工作,设计图纸也无须再专家论证;以苏州为例,基坑设计图纸出来后,要经过专家论证通过即可后续工作,无需审图,这个论证过程由安监站组织;以安徽芜湖为例,支护图纸出来后,审图中心审查,然后进行专家论证,尽管审图通过也是没有用的,在专家论证过程也可能会把审图通过的设计方案推翻。
三、案例分析存在的问题
案例一:苏南某市一个项目,基坑开挖面积约为5800m2,周长约为320m,基坑周边挖深8.15m。支护采用Φ850@1200三轴搅拌桩内插 H700×300×13×24型钢支护,插一隔一,竖向设置一道预应力锚索的形式,具体方案,详见图3。本项目在专家论证的过程中,有一位专家认为,悬挂式止水帷幕没有任何意义,且他打比方讲:悬挂式止水帷幕就像女人穿裙子,不起作用。其实,仔细分析,这位专家是一位外行,犯了至少两个错误。其一,众所周知,延长渗透途径会产生水头损失,如图4所示,延长渗流途径可以降低水头,这是土力学基本常识。其二,这个比方打的也不对。女人穿裙子,她关键部位还是挡上了,不是没有任何意义。
图3苏南某基坑支护示意图

图4渗流路径图
案例二:2012年冬天,一次去皖南某市投标。前面一家设计单位汇报结束后,轮到我进去,还没有坐稳,一位满头白发的专家便问我:你是哪个单位的?我答:南京××单位。话音刚落,这位老专家就不屑一顾地说:南京来的人我就不认可,何况设计方案。听完这句话,我觉得后背发凉。这是专家么?这也太明显了吧!!汇报完后,几位专家表示没有听说过PCMW工法(三轴搅拌桩内插预制管桩)这种方法,更狠的是他们没见过Φ850三轴水泥土搅拌桩机械也没有见过Φ800的管桩。结果可想而知,我的方案直接被毙。
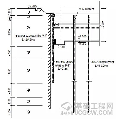
案例三:苏北某工程地下为2层车,基坑普遍侧挖深为10.15m,局部电梯坑挖深14.7m。基坑平面尺寸为160m×115m,开挖面积18500m2,整个基坑采用450×600@600矩形桩支护,竖向设置两道混凝土内支撑,具体形式见图5。
图5 苏北某矩形桩支护基坑示意图
该工程支护设计评审过程,有一位专家提出说没有进行深基坑抗倾覆稳定性验算,不满足规范要求,不能通过。让我一头雾水,两道内支撑的基坑抗倾覆计算?怎么搞?这正如清华大学李广信老师的那句话:以其昏昏,使人昭昭。
四、改进建议
应设计一套使专家的权、责、利相符的体系,让专家负责地评审。不能像某市一位老专家说:“我们专家是不负任何责任的”。那么问题就来了,不负责任的专家,提不负责任的意见,不负责任的意见是好意见嘛?这里需要相关部门介入整个过程,监督专家在评审前后的整个过程中的行为,避免专家权利过大,吃拿卡要,同时也需对专家的意见效果进行披露,动态反映到社会上。
1.专家的组成。尽量聘请从事本行业的人员担任专家,若本地人员较少,可以到周边城市聘请专家,如昆山市聘用上海专家。当然了,所聘请的专家一定要德才皆备。
2.专家抽取阶段。管理部门要在媒体上公布评审专家抽取的原则、方法以及抽中的专家的相关信息。在这一阶段,设计院及建设单位若认为某个专家不符合要求,可向管理部门提出质疑,更换专家,更换专家也要在媒体上发布公告。
3.专家发布申明。在获知自己成为某个项目评审专家后,专家需在媒体上作出申明,包括自己对这一项目的了解程度、自身的职业操守、专业知识和能力、法律法规知识等,申明确实不存在需要避嫌的情况等。
4.专家评审阶段。作为评审专家,若真实无法发现设计问题,或者自己都没有把握的问题,应尽量不提,但可以提建议,比如:设计院应加强和施工单位的沟通等建议,这样,一则设计员不用为了不着边际的问题,无从着手,二则也保住了专家的面子。避免提出奇葩的问题,使人昭昭。
5.专家委员会撰写评审报告。在评审工作结束后,由专家委员会撰写报告,包括此次评审的方法,结果,并署名予以公示。选出专家委员会中的一名代表作为此次评审委员会的主席,此人承担评审结果的法律责任。
五、结语
1.深基坑设计专家评审制度仍处于初步阶段,本文仅提到冰山一角,奇葩问题不胜枚举,因此,需要不断地完善,方能满足市场经济的发展需要。
2.以上观点仅为个人粗浅的认识,代表不了全部,也不尽合理。如果很不幸,您被提到了,请保持佛的心态,不要谩骂。总之,有则改之,无则加勉,和谐最重要。
3.作为支护设计工程师,如果你被专家PK了,请不要气馁,佛曰:一切问题都是时间问题,一切烦恼都是自寻烦恼。奋斗在岩土行业的兄弟姐妹们,用佛的心态面对各种专家评审。一句话:未来属于他们的,未来也是属于我们的,未来一定是属于更年轻的人的。